近日,杭州小伙晒出自己刚刚装修完的新房,很多网友看完都收藏了。
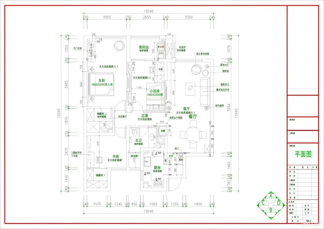
他们家的新房位于萧山一小区,面积105方。去年9月动工,装修一年,几天前刚完成进屋仪式。
共计花费将近25万,其中半包成本7.6万,文末有全部费用清单。
以下是小伙的装修记录,来看看装得如何▼
![]()
![]()
![]()
![]()
![]()
![]()
![]()
![]()
![]()
![]()
![]()
![]()
![]()
![]()
![]()
![]()
![]()
![]()
![]()
![]()
![]()
![]()
![]()
阳台
▼
![]()
“两个储藏间本来其中一个是主卫被我改了”
▼
![]()
![]()
这套新房是他自己设计的。小伙说,用一辆小奥迪的钱,可以装修一套房,还是有性价比的。
「图纸自己画,项目经理自己当,每个工种自己找。后期软装就没花啥心思了,有些老婆买,她看着顺眼就行。」
看完小伙的分享,不少网友都说,虽然存在一些不足,但整体感觉还是挺好的。
尤其是性价比,25万能装成这样,很不错了。
网友@秋季小黄鱼:我的天,25能装成这样,有点厉害。网友@eatchives:除了瓷砖个人不喜欢之外,其它我觉得设计的挺好看的。网友@cute:好棒!明年家里要装修,正好想请教。网友@全萧山最老实:清包确实便宜好几万,自己不懂不行。网友@肉松松爱吃肉:25万装这样真的挺不错的,面积差不多我家花了30多。网友@萧山一朵花:算的好细,25万装成这样厉害的。网友@青绿格子:25万装的很好了!设计都还蛮好的。网友@Darcy:看完整个人都不好了,一样的面积,就比你多一个卫生间,花了二十七八万,跟简装一样。网友@田口建筑-戴工:卫生间瓷砖是不是留缝了?强迫症看着难受。总体可以的,沙发和主卧背景墙颜色很大胆。网友@那朵彩云:你太厉害了,25万能装成这样了,我们家45万装的我好无语。
1.2米5*5门梁角铁4条,1.6米2条,共:170元九五砖310块,多孔砖1010块,水泥20包计:2042元九五砖90,水泥15包,黄沙70袋,退30共:1110元双十一淘宝:3698元(箭牌淋浴花洒,龙头,台盆,地漏,等)拉手:46个,厨房:18个,脚链108共1068元优梵主卧床,床头柜,茶几,边几,单人沙发椅6450元厨房菜刀,油壶,米箱,筷子,两张书桌椅,衣叉,袜子晾架,书桌垫,花架等:1575元105方装修总计:243058元(窗帘和石英石未结算)小伙说,这是自装真实的价格,这个价格在一般情况下都能做下来。如果不懂装修,买东西前多考虑下,别急着下单。希望能给要装修的朋友做参考。
你喜欢他的装修风格吗?
觉得性价比高吗?
来源:萧内网萧山论坛
值班编辑:董箫乐
![]()
![]()
![]()
![]()