点上方蓝字可关注 微信号:装修33天
▲ 建筑面积80平,使用面积67平,造价19万(不包家具家电),入户水泥灰悬挂式分体鞋柜,结合红砖背景
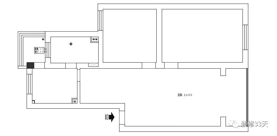
▲ 原始结构图
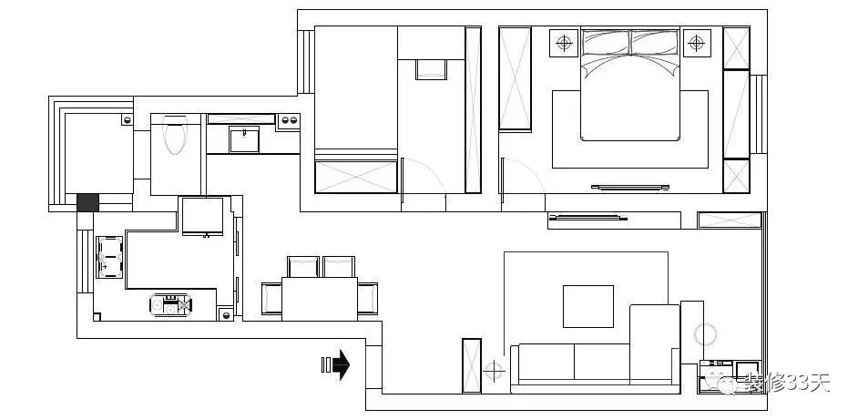
▲ 平面布置图
▲ 一面可移动穿衣镜延伸视觉感,空间利用鞋柜作隔断,来分割场域
▲ 客厅通过木地板与白墙,呈现简约轻松的居家场景,结合阳台做收纳以及猫星人的窝
▲ 客厅望向餐厅
▲ 白墙与水泥墙作背景,一张可伸缩餐桌,节省空间也可容纳更多人就餐
▲ 开放式厨房墙面通铺白色小方砖,墙面掏一块壁龛放搁板做收纳架
▲ 餐厨区望向客厅视角,采用局部水泥墙面体现工业风
▲ 多功能房木作榻榻米床铺,整面水泥色书架,兼作书房与临时客房
▲ 主卧整体以混搭为主,放一张低奢大床,精致出效果
▲ 浅灰色床背景,对称装一对金色悬吊阅读灯
▲ 在床边设计假飘窗兼作储物与休闲之用
▲ 一组大衣柜,侧边设计假墙,形成嵌入式储物模式
▲ 卫生间干湿分区,提高使用效率
设计 | 犀宅原创装饰(上海)
微信:18501680515
后台回复「犀宅」可以看更多作品
媒体转载请注明装修33天并保留设计师联系方式
欢迎业主、设计师、装修公司免费投稿照片
装修33天商务合作微信:king194316
松爷店铺掌柜微信:yejia1701
犀宅原创装饰其他作品推荐,点击下图查看120平混搭带阁楼老房 空间充分利用
实用装修指南
装修33天 🏡 实用装修指南
喜欢我们的文章就随手转发到您朋友圈吧