点上方蓝字可关注 微信号:装修33天
▲ 使用面积90平,总造价20万,入户白色搭配浅绿色调,给人清爽的视觉感
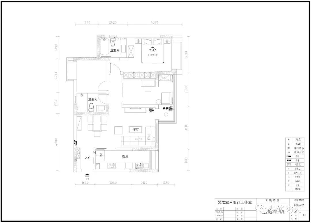
▲ 平面布置图
▲ 左侧护墙搭配模压板组装柜体作鞋柜使用,留出换鞋与挂衣机能
▲ 入户后看到餐厅,浅色系墙面,细微的色调变化搭配一面软木挂钟,简约不复杂
▲ 白色与木色的餐桌与墙面层板材质呼应,搭配蓝白餐椅,后方的成品抽屉柜作餐边柜使用
▲ 餐厅望向客厅
▲ 客厅地面通铺浅色系木地板,蓝色与绿色的墙面搭配白色简洁吊顶
▲ 奶咖色简美款沙发,搭配层板背景墙,木质百叶帘增添空间休闲温馨氛围
▲ 拼色地毯与撞色靠枕提亮空间,客餐厅之间的绿框玻璃移门是厨房的入口
▲ 厨房采用三色六角砖拼贴,工字铺白色墙砖与定制橱柜,空间干净明朗
▲ 书房延续公领域清新基调,纳入阳台设计休闲一角,成品家具实用且更灵活
▲ 主卧木地板搭配蓝色背景墙,点缀手工编织墙饰,床侧放置成品多斗柜,实用并给空间增加色彩
▲ 象牙白大床搭配一对床头柜,金色壁灯对称点缀,窗帘与背景墙色调保持一致
▲ 卫生间灰色地砖搭配白色墙砖,蓝色系花砖铺贴出淋浴区背景,成品浴室家具色彩清新
设计 | 梵之设计(成都)
微信:373454377
后台回复「梵之」可以看更多作品
媒体转载请注明装修33天并保留设计师联系方式
欢迎业主、设计师、装修公司免费投稿照片
装修33天商务合作微信:king194316
松爷店铺掌柜微信:yejia1701
梵之设计其他作品推荐,点击下图查看25万100平木色系清爽简约三居
实用装修指南
装修33天 🏡 实用装修指南
喜欢我们的文章就随手转发到您朋友圈吧