点上方蓝字可关注 微信号:装修33天
▲ 建筑面积140平,客厅地面通铺木色地板,搭配极简顶面,做无主灯处理
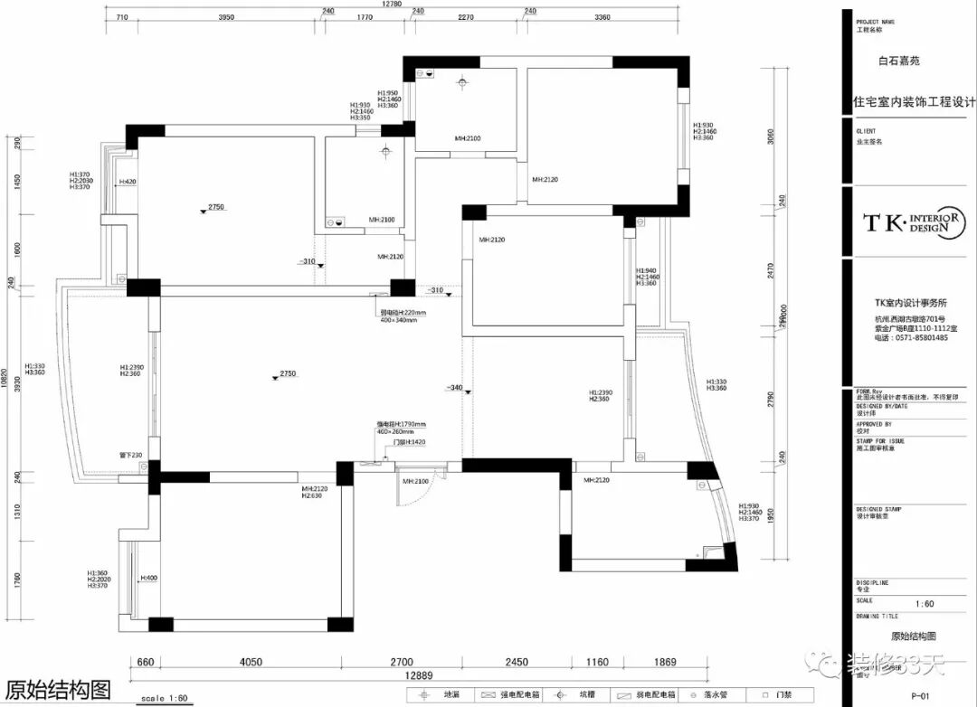
▲ 原始结构图
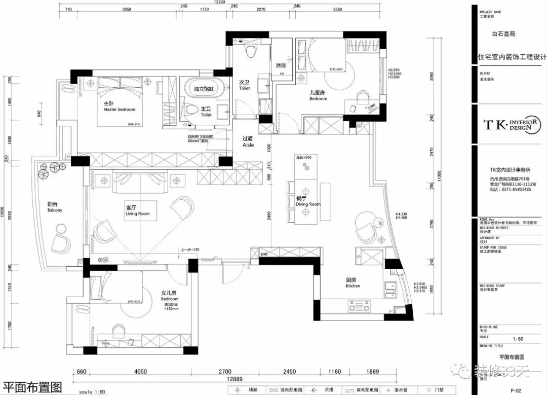
▲ 平面布置图
▲ 奶白色主沙发搭配深色单椅,与黑白茶几组形成空间对比色调
▲ 深色木饰面背景搭配白色墙体,点缀两幅简框画,两边不同款实木边几,轻盈实用
▲ 文化石墙面搭配地台设计出质感电视背景,将自然粗犷且平和的味道融入进来
▲ 客厅望向餐厅方向
▲ 拆除不必要的墙体,合理划分区域空间,将餐厅与西厨融合,空间宽敞明亮
▲ 定制橱柜收纳大型厨电,搭配中岛形成西厨空间,连接原木餐桌空间合二为一
▲ 西厨餐厅望向中厨区,并在餐厅旁增加休闲一角
▲ 黑白灰的厨房搭配,经典而大气,隐形拉手的设计让橱柜线条利落干净
▲ 客卫地面与墙面通铺水泥色瓷砖,墙排马桶上方设计壁龛增加收纳,并在卫生间增加洗衣干衣功能
▲ 儿童房木色地板搭配浅蓝色墙面与灰色窗帘,原木帐篷床
▲ 灰色硬包床背景,不对称线条增加律动性,搭配卡其色皮床与素色床品,呈现简约台式风格
▲ 置顶大衣柜中设计出阅读区,白色搭配深木色,整体与公领域色调呼应
▲ 主卫整体与客卫呼应,用浴帘代替玻璃移门,空间伸缩有度
设计 | TK原创设计(杭州)
电话:15957143882 微信:tk_design
后台回复「TK」可以看更多作品
媒体转载请注明装修33天并保留设计师联系方式
欢迎业主、设计师、装修公司免费投稿照片
装修33天商务合作微信:king194316
松爷店铺掌柜微信:yejia1701
TK设计其他作品推荐,点击下图查看90平现代混搭两居 暖调原木色轻盈居
实用装修指南
装修33天 🏡 实用装修指南
喜欢我们的文章就随手转发到您朋友圈吧