点上方蓝字可关注 微信号:装修33天
▲ 建筑面积112平,总造价35万,入户玄关兼具换鞋,置物与收纳机能
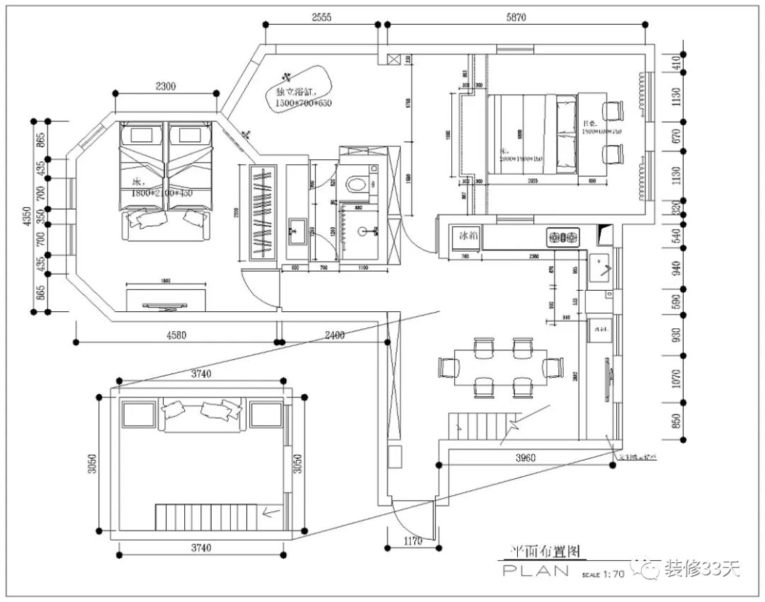
▲ 平面布置图
▲ 一个面积10平,层高5.8米的鸡肋房间,设置成餐厨区,并搭建一个小阁楼
▲ 餐厨合并,空间视线宽敞,木色橱柜门片与木质餐桌色调呼应
▲ 干净剔透的餐具与精心布置的餐桌,是美好生活的开始
▲ 简单的料理,香浓的咖啡,享受惬意小资生活
▲ 走廊,蓝色墙面搭配乳白色套门,纯净静谧
▲ 次卧作父母房,不规则的房型通铺柔和色调壁纸,宜家款成品衣柜满足空间储物
▲ 装饰画与繁花床品呼应,点缀纯色小壁灯,温馨优雅
▲ 主卧打造地台床,嵌入灯带,增加层次,三面环窗床铺居中放置,打破设计常规
▲ 简单的硬装通过软装,布置出轻松的休憩氛围
▲ 床背后放置投影仪,床尾设计可升降幕布,满足卧室观影需求
▲ 收起升级幕布,打开百叶折叠门,即是主卫空间
▲ 纳入主卧阳台打造成五星级泡澡间,并与主卫相邻,形成合理的洗浴动线
▲ TOTO浴缸搭配浴室配件,呈现清爽大气的格调
▲ 搭建出来的小阁楼打造成休闲厅,清新墙面点缀装饰画与色彩抱枕,空间充满活力
▲ 卡其色布艺小沙发搭配木面茶几,一组吊柜与层板打造出沙发背景
设计 | Tina_wang(上海)
微信:Tina_wang_design
后台回复「Tina」可以看更多作品
媒体转载请注明装修33天并保留设计师联系方式
欢迎业主、设计师、装修公司免费投稿照片
装修33天商务合作微信:king194316
松爷店铺掌柜微信:yejia1701
Tina_wang其他作品推荐,点击下图查看一字型蜗居的逆袭 还带小院子
实用装修指南
装修33天 🏡 实用装修指南
喜欢我们的文章就随手转发到您朋友圈吧