点上方蓝字可关注 微信号:装修33天
▲ 建筑面积70平,总造价28万,温柔老爸为女儿入学选择老破小学区房,并将其改造成舒适小蜗居
▲ 平面结构图
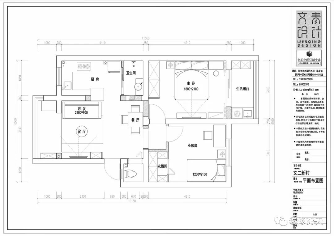
▲ 平面布置图
▲ 纳入阳台区域,木作榻榻米,打造成阳光客厅,并让整室布局更加合理舒适
▲ 客厅北欧轻柔色调的墙面点缀芭蕾舞者装饰画,小巧且无棱角的家具,减少碰撞的隐患
▲ 木作收纳型电视背景墙,弥补小空间储物机能的不足
▲ 将电视背景墙的展示柜做进榻榻米休闲区,与自然光结合,成为整室一景
▲ 客厅后方设计开放式厨房,以吧台作隔断,合理利用每一个角落,扩大空间感
▲ 厨房深色地面搭配小白砖墙面,木纹橱柜搭配白色层板,呈现经典北欧料理区
▲ 客厅望向餐厅,互通的格局为小空间首选
▲ mini小餐厅,内凹墙设计洞洞板,清浅背景点缀装饰画,小家具满足三人用餐
▲ 餐厅对面为独立的马桶间,以白色折叠门作隔断
▲ 马桶间以黑白灰为基调
▲ 儿童房,三角纹壁纸搭配花植窗帘,加入吊灯与床幔,提升整体颜值
▲ 主卧,灰绿色床背景点缀装饰画,搭配木色大床与灰绿色床品,清简雅致
▲ 床侧用一张化妆桌取代床头柜
▲ 床尾灰色多斗柜,点缀精致软装,为主卧增添收纳机能
▲ 卫生间采用六边砖铺贴出淋浴房背景,搭配黑色花洒,简单不乏个性
设计 | 文青室内设计(杭州)
微信:13588798462
后台回复「文青」可以看更多作品
媒体转载请注明装修33天并保留设计师联系方式
欢迎业主、设计师、装修公司免费投稿照片
装修33天商务合作微信:king194316
松爷店铺掌柜微信:yejia1701
文青室内设计其他作品推荐,点击下图查看89平极简两室 一个没有客厅的家
实用装修指南
装修33天 🏡 实用装修指南
喜欢我们的文章就随手转发到您朋友圈吧