点上方蓝字可关注 微信号:装修33天
▲ 使用面积120平, 拎包入住价60万,一人居住的奇女子,居家环境既是景,也是境
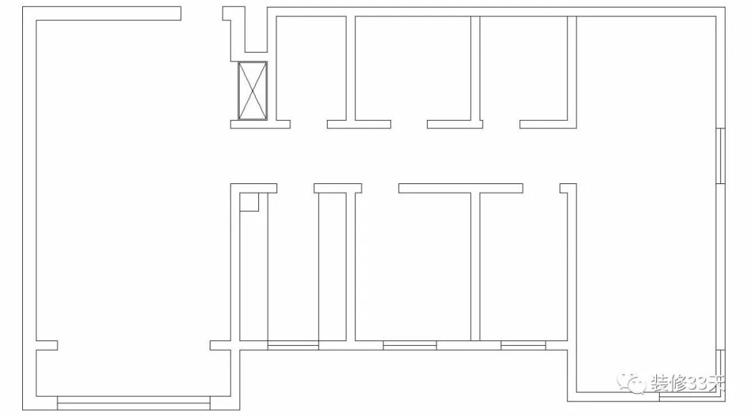
▲ 平面结构图
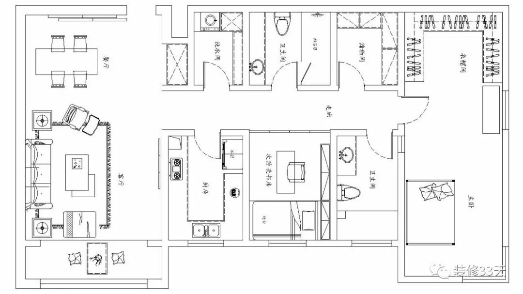
▲ 平面布置图
▲ 入户门一侧设计四扇可推拉折叠的屏风,拉开时巧妙地把入户门藏起
▲ 客厅将美融入生活的智慧,情感热烈深沉而不矫饰喧嚣,气质隽永明快而不邀宠于形
▲ 客厅地面通铺灰色哑光瓷砖,留白墙面与简洁吊顶,为空间软装留出更多可能性
▲ 黑色做旧皮质沙发,搭配老树根造型茶几,再加上沙发背景墙上的山水图,古朴而意境悠远
▲ 孔雀蓝座椅中间摆放一面白色鼓凳,让中西碰撞与交融
▲ 利用阳台打造地台品茗区,静静的在那里,就很美
▲ 精致的老物件,让人仿佛身处古代深宅中
▲ 客厅望向餐厅视角
▲ 餐厅整面白色屏风墨色包边,前面摆放一棵枯树,插上嫩绿枝条,映衬着屏风俨然成了一幅水墨丹青
▲ 餐厅兼具茶室机能,与客厅相连,一眼就可以看到阳台外婆娑的树影
▲ 厨房没有多余繁杂的装饰,统一的色调显得整洁明亮,时尚简约
▲ 原始房型走廊较长,把书房的墙体去掉,做成四扇可以开合的屏风,搭配古意悠远的画作
▲ 书房延续简单质朴的色调,映衬室外绿景配以复古雅致的书桌,靠窗设计卧榻增添空间机能
▲ 主卧,业主淘来一张古式架子床,搭配帷幔,古朴大方,素净优雅
▲ 卧室陈设简约,衣柜柜门选用做旧的雕花木门,显得端庄典雅
▲ 卫生间,青灰色石纹嵌入暖色灯带,墙排龙头与墙排马桶,空间简洁利落
设计 | 五明原创设计(北京)
微信:wmsj5656
后台回复「五明」可以看更多作品
媒体转载请注明装修33天并保留设计师联系方式
欢迎业主、设计师、装修公司免费投稿照片
装修33天商务合作微信:king194316
松爷店铺掌柜微信:yejia1702
五明原创设计其他作品推荐,点击下图查看76平混搭情怀二居 让人想起小时候
实用装修指南
装修33天 🏡 实用装修指南
喜欢我们的文章就随手转发到您朋友圈吧