点上方蓝字可关注 微信号:装修33天
▲ 使用面积128平,入户整合空间留出宽阔过道,呈现原木系高级感端景
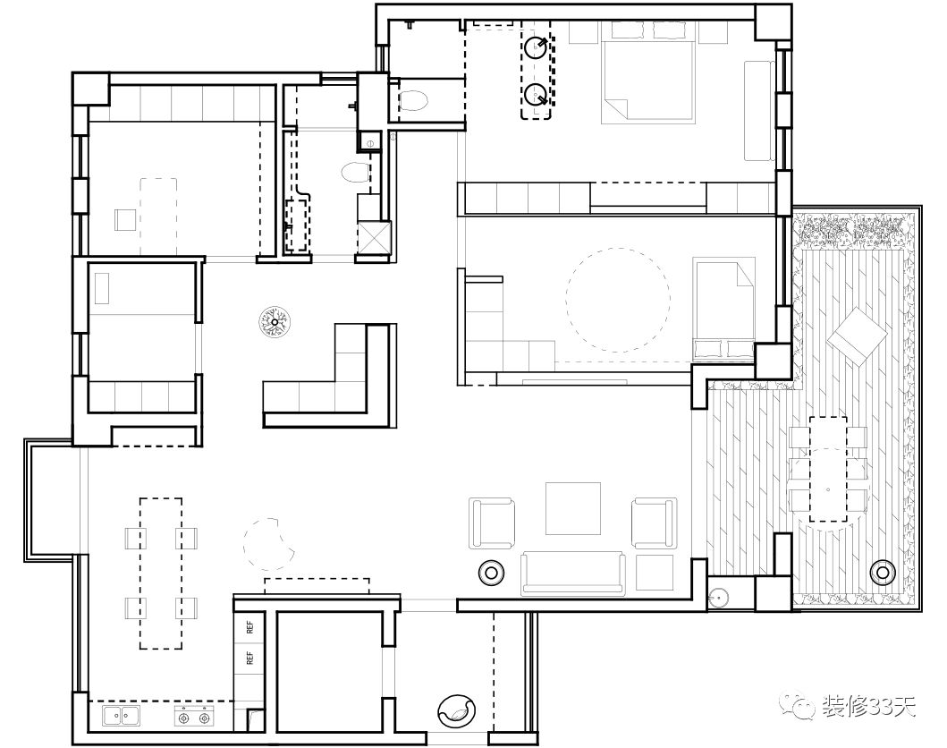
▲ 平面结构图
▲ 平面布置图
▲ 大面积茶色玻璃的运用,扩大空间视觉感
▲ 入户右侧规划为客厅,整面落地玻璃与留白墙面,以及无主灯设计让空间显简洁明亮
▲ 深浅灰系沙发搭配,木质石面茶几,留白墙面点缀不同大小的装饰画与挂钟
▲ 将厨房,小阳台,餐厅三个区域打通,视觉从室内延伸至室外
▲ 餐厨合一设计,浅绿色吊灯搭配极富线条感的木质餐桌椅,绿植与鲜切花让空间充满生趣
▲ 开放式厨房明亮整洁,内嵌烤箱与冰箱设计,既节省空间,又极具现代感,白色橱柜起到扩容与提亮的效果
▲ 书房,整体以木色与白色为基调,简单的书桌椅,墙上两幅简框画点缀,营造轻松的办公氛围
▲ 书桌对面的成品书架作背景,柔和的原木色泽,大容量的收纳空间,简洁实用
▲ 儿童房采用童趣十足的壁纸铺贴出床背景,搭配实木家具,自然清新
▲ 床头一角,暖光台灯营造温馨氛围
▲ 榉木书桌取代传统床头柜,侧边置物架搭配颜色清新的收纳盒,成为卧室阅读一角
▲ 主卧,延续简洁的留白空间,搭配原木色家具,用简洁的梳妆台代替一侧床头柜
▲ 主卫干湿分离,用玻璃隔断作为干区与卧室空间的划分,视线与采光通透
▲ 景观露台,水泥灰地砖围绕一圈碎石,户外家具,铁件花架,绿植与蜡烛灯整天浪漫气息
设计 | 7kk设计(上海)
微信:15221706435
后台回复「7kk」可以看更多作品
媒体转载请注明装修33天并保留设计师联系方式
欢迎业主、设计师、装修公司免费投稿照片
装修33天商务合作微信:king194316
松爷店铺掌柜微信:yejia1702
7kk设计其他作品推荐,点击下图查看135平现代简约三居 高级灰西厨太撩人
实用装修指南
装修33天 🏡 实用装修指南
喜欢我们的文章就随手转发到您朋友圈吧