点上方蓝字可关注 微信号:装修33天
▲ 建筑面积146平, 好“色”设计的艺术空间,色彩鲜明大胆
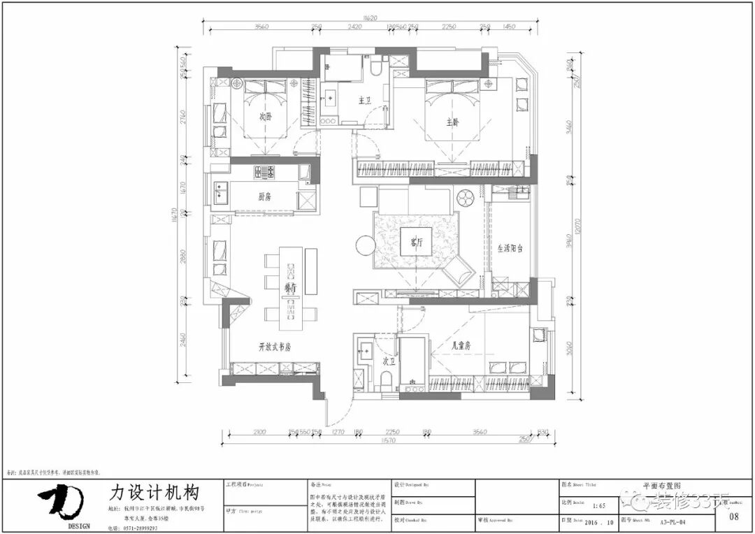
▲ 平面布置图
▲ 客厅,地面通铺白底灰纹地砖,顶面的小弧度设计,别出心裁
▲ 不同颜色界定居住空间,伴随着强烈的视觉冲击,有如神奇的缤纷花园
▲ 黑色拉槽背景墙嵌入金属色泽竖条饰带,蓝色主沙发与侧面红墙形成对比
▲ 采用制定柜体连接电视背景墙,延伸至与后方次卫墙面齐平
▲ 客厅望向餐厅方向
▲ 长条形餐桌让用餐和聚会都更方便,使整个空间变得开阔,也改变业主的生活方式
▲ 用两种不同材质的桌面拼成超长餐桌,黑色餐椅搭配长凳,一把红色温莎椅点缀
▲ 黑色台面区域与后方红黑相间的书柜,形成开放式书房
▲ 餐厅边上的飘窗打造成兼具收纳机能的休闲一隅,造型圆润趣味的书架墙包裹承重墙体
▲ 餐厅与厨房相邻,黑色窄边玻璃门有效隔绝油烟,红色橱柜与黑色电器搭配相得益彰
▲ 多功能房,榻榻米背靠整面收纳墙,白色无拉手柜门搭配肉粉色墙面,简洁不失俏皮感
▲ 多功能房的床尾设计不规则书架,搭配大象气球壁画,让空间充满童趣
▲ 儿童房,一面简笔画墙纸铺贴出床背景,三角造型的床靠成为空间亮点
▲ 儿童房休闲飘窗兼具收纳功能
▲ 主卧地面通铺艺术地板,搭配弧度吊顶,色彩也是空间设计中重要的表现语言
▲ 大地色系软包大床搭配复古床头柜,定制款瓷白色贝壳形背景墙给空间增添时尚气质
▲ 卫生间,黑色地砖搭配蓝黑色墙砖,局部嵌入时尚元素的设计,让空间充满个性
设计 | 力设计(杭州200公里以内)
微信:17858603257
后台回复「力设计」可以看更多作品
媒体转载请注明装修33天并保留设计师联系方式
欢迎业主、设计师、装修公司免费投稿照片
装修33天商务合作微信:king194316
松爷店铺掌柜微信:yejia1702
力设计其他作品推荐,点击下图查看123平简约现代三室 木色石材质感高级
实用装修指南
装修33天 🏡 实用装修指南
喜欢我们的文章就随手转发到您朋友圈吧