点上方蓝字可关注 微信号:装修33天
▲ 使用面积140平,奢,可以是直观的张扬,也可以是内敛的低调
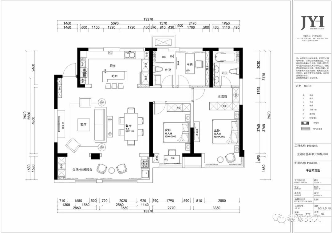
▲ 平面布置图
▲ 客餐厅与阳台相通,宽敞明亮,简洁的装饰呈现轻奢质感,大面积胡桃木的应用,塑造出沉稳的空间氛围
▲ 精致大理石茶几与咖色轻磨砂翻毛皮沙发组,搭配黑色花纹羊毛地毯,使空间视觉进退有度
▲ 胡桃木勾勒大理石电视背景,提升空间质感格调,右侧多功能鞋柜,满足入户需求
▲ 餐厅,儒雅含蓄的米色真皮餐椅搭配硬朗简洁的金属桌脚餐桌,打造出贵族般用餐空间
▲ 米色墙纸点缀蓝色晕染水墨画,为整个居室带来灵动与活力
▲ 走廊自然将厨房与客餐厅划分,石纹砖与大理石勾勒出各区域空间
▲ 开放式厨房设置中岛,具备吧台与西厨操作台面,右侧橱柜纳入冰箱,使厨房动线更加流畅
▲ 胡桃木与黄铜的搭配更显层次,顶部设置空调出风口,在夏天做饭是一种享受
▲ 客卫,黑色大理石台盆柜,搭配精致墙镜与壁灯
▲ 书房,没有过多繁杂的装饰,胡桃木柜体上部开放式设计,丰富柜体功能
▲ 儿童房,以米色、灰色为基调,蓝色高背床与浅蓝色床品,搭配灰色软包背景,素净清爽
▲ 窗边的小书桌,便于以后学习、写功课
▲ 主卧,淡淡的香槟色辅以紫色与高级灰,让主卧充满优雅的韵味
▲ 皮革高背床点缀装饰画与造型壁灯,经典的菱形格纹床头柜,融入家居细节
▲ 主卫,定制双人台盆延伸设计浴缸,灰色墙砖时尚美观
设计 | 吉友洪设计工作室(无锡)
微信:JYHdesign1981
QQ:9937249
公众号:jyhdesign
后台回复「吉友洪」可以看更多作品
媒体转载请注明装修33天并保留设计师联系方式
欢迎业主、设计师、装修公司免费投稿照片
装修33天商务合作微信:king194316
松爷店铺掌柜微信:yejia1702
吉友洪设计工作室其他作品推荐,点击下图查看80平复古轻奢混搭 开放式餐厨半透明卧室
实用装修指南
装修33天 🏡 实用装修指南
喜欢我们的文章就随手转发到您朋友圈吧