点上方蓝字可关注 微信号:装修33天
▲ 建筑面积95平,总造价35万,充满线条感与视觉感的独立玄关区,构成让人眼前一亮的调性
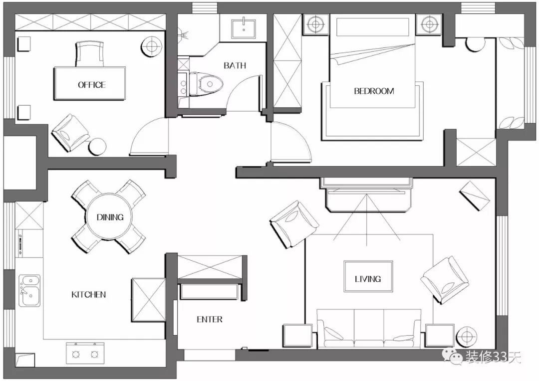
▲ 平面结构图
▲ 平面布置图
▲ 客厅整体带点轻奢元素的风格,清爽不厚重,又不缺失空间质感
▲ 在同个空间中游走于稳重和甜美,也融合得恰到好处
▲ 编号18-3838的Ultra Violet紫外光色,带有灰度的烟熏色展现沉静朦胧的气质,轻松营造出和谐感
▲ 紫色墙面与白色柜体与护墙,可以搭配出柔和摩登的色彩组合
▲ 采用自然石材打造简易壁炉造型电视墙,两边对称紫色造型与壁灯修饰
▲ 客厅望向门厅与餐厅方向
▲ 紫色的墙面,延伸至餐厅场域,搭配白色护墙与黑白棋格地面,过道一组储物柜增加收纳空间
▲ 拆掉厨房墙面,让餐厅与厨房相融合,让原本拥挤尴尬的空间变得宽敞明亮,且充满艺术氛围
▲ 厨房,L型料理台满足洗切烧的需求,黑色与白色搭配的橱柜门片与地面配色呼应
▲ 走廊端景,通过个性挂件与金属质感灯饰,提升空间格调
▲ 书房,带有灰度的一组搭配色,配合天蓝色,整墙的书柜背景满足功能与视觉亮点
▲ 主卧则选用英式风格的优雅慵懒,亮面材质+精致灯饰
▲ 用带有些许现代味道的家具,和丝绒材质表达空间使用性与舒适度
▲ 主卧纳入阳台,打造兼具储物,休闲与梳妆台机能的多功能区域
▲ 利用犄角空间做一组置顶收纳
▲ 卫生间,花砖地面搭配小白砖与黑色美缝,黑色台盆柜与储物镜柜,现代实用的空间中夹带出复古格调
设计 | 深白设计(天津)
微信:ShenbaiDesign
QQ:573449640
后台回复「深白」可以看更多作品
媒体转载请注明装修33天并保留设计师联系方式
欢迎业主、设计师、装修公司免费投稿照片
装修33天商务合作微信:king194316
松爷店铺掌柜微信:yejia1702
深白设计其他作品推荐,点击下图查看爆改90后婚房,125平现代简约三居
实用装修指南
装修33天 🏡 实用装修指南
喜欢我们的文章就随手转发到您朋友圈吧