点上方蓝字可关注 微信号:装修33天
▲ 建筑面积91平,造价9.5万(不含电器),入户定做灰色置顶鞋柜兼具换鞋凳的功能,搭配穿衣镜与洞洞板,洞洞板可翻开,背后藏有配电箱
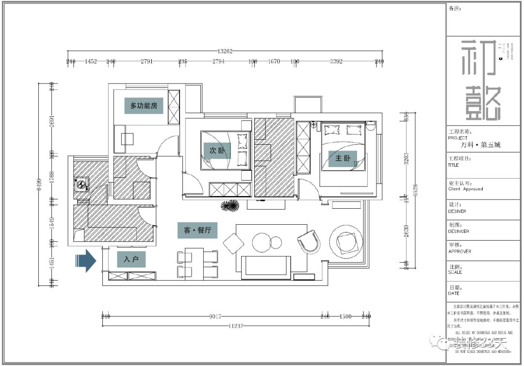
▲ 平面布置图
▲ 公领域墙面整体铺贴浅灰色无纺布墙纸,以此来融合深色地板与软装布置
▲ 中灰敦厚的沙发,原木组合茶几,深青色的懒人豆袋,营造出不同的高低层次,搭配出轻松慵懒居家环境
▲ 沙发背景用组合装饰画修饰,色彩基调与原开发商的深色木门和地板相融合
▲ 印尼雨木茶几,体量感所带来的厚重平稳,天然纹理格调,原木的触感,为家注入自然温润的质朴感
▲ 开放式客餐厅,以机能性家具,以及顶面主灯,划分场域
▲ 选择纤细桌椅腿的餐桌餐椅,墙面搭配多功能铁件置物架
▲ 餐桌兼具书桌使用,待在家好好享受每一餐,每一刻
▲ 餐厅望向客厅与阳台视角
▲ 多功能房,榻榻米连接书桌,上方设置开放式书架,满足客房,储物,书房的机能
▲ 多功能房的软硬装色调较为沉静,适宜性强
▲ 次卧,暂作父母小住的卧室,未来考虑作儿童房,所以整体配色与格调没有很强的年龄偏向
▲ 灰绿色调中,选择橡木家具搭配出北欧风的简洁自然
▲ 主卧,灰色基调搭配暖棕色复古韵味牛皮床靠,床背景采用哑光不锈钢条进行分色
▲ 床头安装具有置物机能的壁灯,造型简洁,让房间有了一股率性
设计 | 初懿设计(成都)
微信:18180817659
后台回复「初懿」可以看更多作品
媒体转载请注明装修33天并保留设计师联系方式
欢迎业主、设计师、装修公司免费投稿照片
装修33天商务合作微信:king194316
松爷店铺掌柜微信:yejia1702
初懿设计其他作品推荐,点击下图查看温馨美式复式大宅 软装决定家的气质
实用装修指南
装修33天 🏡 实用装修指南
喜欢我们的文章就随手转发到您朋友圈吧