点上方蓝字可关注 微信号:装修33天
▲ 建筑面积90平,造价22万(不含家具家电),年轻的业主誓要将独身主义进行到底,将套二改为一居室,你想要的房屋配置她都有了
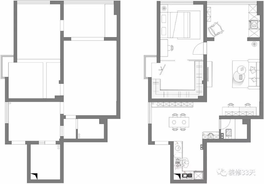
▲ 平面布置图(套二改一居,幸运的是所有想打的墙都能打,原本如豆腐块一样各自分布的区域现在都“活”了起来)
▲ 入户选择宜家的简易鞋柜,放几双常穿的鞋子,因为这款鞋柜本身很薄,所以存在感不强,并不会觉得进出很挤
▲ 这个角度可以看到进大门的位置,入户承担的功能很多,餐厅都在这个区域,防盗门贴毛毡,DIY让家从进门就变美
▲ 北欧风餐桌椅搭配造型吊灯,后方餐边柜提供大容量储物空间,灰白色点缀地板与家具的木色,清爽又自然
▲ 餐桌小景
▲ 设计开放式厨房与餐厅以及干区洗手台融合,地面采用不同的材质铺贴,以划分功能性场域
▲ 厨房没有窗户,墙上的瓷砖也是专门选的亮面白色,一点点光的折射、反射会让空间显得更大更亮
▲ 从餐厨空间望向客厅视角
▲ 业主是一名工科女生,自学能力超强,即使一个人住,她也要超大的书桌
▲ 双人位的书桌足够日常使用,在颜值即正义的时代,又实用又好看的工作区,此角度也可以看到它和浴室柜、厨房的关系
▲ 客厅纳入阳台,呈现明亮开阔的公领域环境,地面延续木色地板,简约的顶面通过点光源与造型吊灯提升亮度与颜值
▲ 客厅沙发只有一个三人位,原先设计其实是有考虑再加一个单人沙发,考虑到业主一个人住,觉得适当的留白也有很棒的感觉
▲ 自由的独身生活,惬意自在
▲ 休闲阳台,慵懒的坐在沙发上看看书,撸撸猫,感觉时间都可以静止,墙上的画暗藏玄机,它负责美丽之外,还负责遮住背后的晾衣绳盒子
▲ 阳台另外一边是强大的储物柜,收纳洗衣机与烘干机,与所有清洁用品,没有开的门背后墙上藏着晾衣绳的另一半盒
▲ 电视背景没有过多修饰,浅灰色墙面点缀几个铁件墙饰,一组白色落地电视柜,增加客厅收纳
▲ 卧室延续黑白灰的清爽基调,拥有阳光充足的就寝区,1.2米的梳妆台,以黑色窄框玻璃为隔断的超大衣帽间
▲ 阳光正好,透过百叶窗洒落进来的光线让人倍感温馨
▲ 原来次卧的位置,后期封掉房门,把这个房间改成从卧室内部进出的步入式衣帽间
▲ 把最小的卧室改成衣帽间,整个卧室区域的功能就变得强大起来,安装新风系统,窗户大多数情况下都会关着,不用过于担心积灰问题
▲ 卫生间干湿分区后,将洗脸台外置,解放湿区空间,整体仍延续黑白灰的清爽基调
设计 | 里特设计(成都)
微信:cdLtsj
电话:18482050806
后台回复「里特」可以看更多作品
媒体转载请注明装修33天并保留设计师联系方式
欢迎业主、设计师、装修公司免费投稿照片
装修33天商务合作微信:king194316
松爷店铺掌柜微信:yejia1702
里特设计其他作品推荐,点击下图查看120平现代简约三室 返璞归真低调居家
实用装修指南
装修33天 🏡 实用装修指南
喜欢我们的文章就随手转发到您朋友圈吧