点上方蓝字可关注 微信号:装修33天
▲ 170平的房子(套内面积),装修花110万除了简约精致,也就住1人1柯基而已
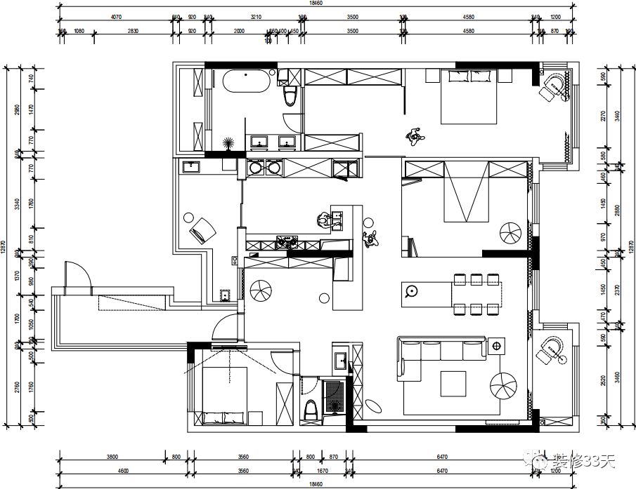
▲ 平面结构图(优点:赠送面积多+可改动性多;缺点:厨房空间太小+空间碎片化,鸡肋空间多)
▲ 平面布置图(将狭小的厨房平移到隔壁的鸡肋空间,空出来的面积干脆给到玄关,还大房子入户的开阔和明爽)
▲ 入户门口墙面用黑色乳胶漆,和进门右边黑色的整面悬浮鞋柜连成一体,堪称进门一大丑的强电箱,也被藏在墙面挂画的后头
▲ 超大的储物+入户空间,半纯粹的空间留白就像是家的一种召唤,回家别一个人在车里待着啦,你要的宁静舒缓,家里都有
▲ T型岛台连接玄关和厨房,成为空间的重要纽带,还将原先的管道井包裹在内,犹如一根大柱子镶嵌其中
▲ 极简风的客厅,与沙发温馨的棉麻材质相融合,带来岁月静好的温情体验,给人一种简单通透的舒适感
▲ 雾橙色的沙发自带自信而不张扬的活力,冬天的傍晚偎在电子壁炉旁,便能静静地看一本书或发会儿呆
▲ 顶面和下方设计柔和的线条光,整个空间以黑色不锈钢和石灰石花岗岩来调色,简洁的线条之外,再无任何的的烟火气
▲ 餐厅的岛台在沙发后方,环岛台形成第一条洄游动线,让空间活动中心转移到餐桌,提高空间利用率的同时也让空间变得更加有趣
▲ 白色柜体和台面配以黑色的灯具、钟和装饰,在一起呈现出非常强烈的视觉效果,极简、纯净的线条,让居住者摆脱空间的繁琐,回归真正的自我感受
▲ 岛台后方的多功能区折叠门打开后,形成了第二条洄游动线
▲ 客餐厅全貌
▲ 两条线不仅让每一个空间都不会空置,还减少墙面,让整个空间看起来更开阔,洄游动线模糊空间界限,但折叠门的存在,也在以一己之力,维护一方的宁静
▲ 平日里是超大储物间+备用活动间,客人需要留宿的时候,还能随手变身卧室
▲ 一旁T型岛台连接厨房、玄关,和客厅、餐厅隔岸相望,岛台下方的不锈钢本色饰面配白色石英石台面,方便打理也十分有质感
▲ 厨房墙面用一整块超白烤漆玻璃,白色更纯粹的同时,基底光滑也方便打扫,右边是顶天立地的厨房高柜,冰箱、洗衣机等小家电都选择内嵌或藏起来
▲ 厨房台面和岛台整个是连接在一起,水槽安装选择台中盆内嵌工艺,极致、讲究的细节处理才是极简的灵魂
▲ 客卫,极简的色彩与造型搭配,通过镜面的设计增加视觉空间,在镜面背景中做卫生间的隐形门设计
▲ 穿过纵深感很强的走廊,映入眼帘的是主卧衣帽间一景
▲ 为平衡黑白的高反差,还用 F+OYES 的大红玩偶来点亮空间,一旁的黑色铁艺格栅后面,为主卧空间
▲ 整个主卧是全敞开的形式(主卧、衣帽间、主卫),于是格栅的存在,不露声色地分隔空间,使房间变得可以灵活使用
▲ 床头背景墙面践行“少即是多”的建筑学理论,仅用水泥艺术漆加木饰面做简单处理,灰色和木色的搭配组合,营造出极简主义的空间氛围
▲ 用挂画来替代电视的存在,更使整个室内充满一种素净而优雅的感受,地板也是最简单的压条处理,和砖衔接的部分也是最简约的密接
▲ 从主卧望向主卫视角,将近10㎡的超宽阔主卫,十分契合当下青年最追捧的生活态度
▲ 大理石纹花砖并没有繁多的颜色,只用白色与灰色在浴室空间里相互搭配,营造出空间的层次感,给人独具美感的视觉享受
设计 | FF INTERIOR DESIGN 费崎峰(上海)
微信:18601793539
后台回复「费崎峰」可以看更多作品
媒体转载请注明装修33天并保留设计师联系方式
欢迎业主、设计师、装修公司免费投稿照片
装修33天商务合作微信:king194316
松爷店铺掌柜微信:yejia1702
FF INTERIOR DESIGN 费崎峰其他作品推荐,点击下图查看单身小哥现代Loft 全玻璃隔断做门
实用装修指南
装修33天 🏡 实用装修指南
喜欢我们的文章就随手转发到您朋友圈吧