点上方蓝字可关注 微信号:装修33天
▲ 建筑面积128平,本案通过强烈的撞色效果,充满调性以及设计感的装饰,带出时尚气息
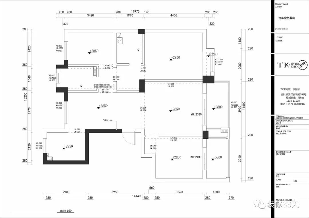
▲ 平面结构图
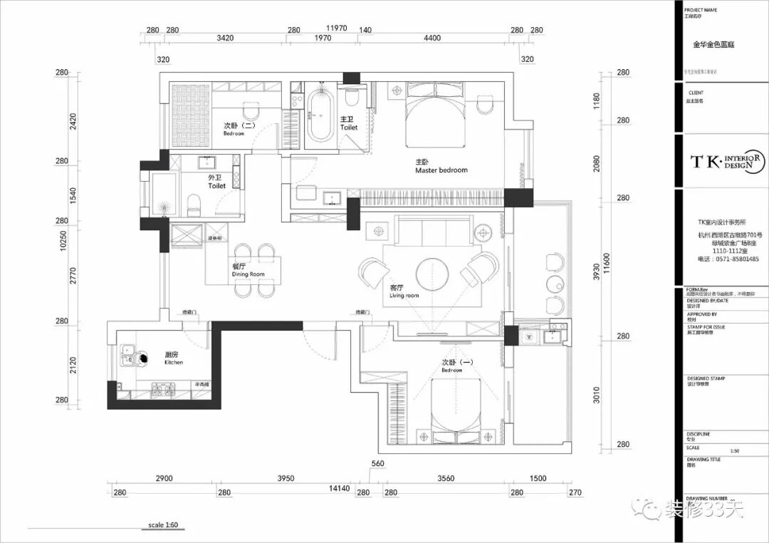
▲ 平面布置图
▲ 入户过道轻松过度客餐厅区域,墙面内嵌置顶柜体,留空部分用红色填充,点缀金色吊灯与北欧风绿植
▲ 三房朝阳的户型,拥有良好采光与通风,大胆的运用强烈的红色为室内带来无尽的热情与温暖
▲ 客厅,一面白墙通过石膏线进行简单的勾勒,再点缀上充满艺术气息的装饰画,精致又充满文艺色彩
▲ 蓝色天鹅绒沙发搭配红色单椅与靠枕,金属和大理石结合的茶几,客厅的角落放置黑红复古柜,整体装饰出时尚又带有复古的格调
▲ 电视墙一侧打造收纳柜,另一侧借位做次卧的隐形开门,内凹涂刷红色背景搭配桃粉色电视柜,层次与个性鲜明
▲ 客厅望向餐厅视角,整个空间以轻装修,重装饰的方式呈现新潮的INS风格
▲ 餐厅与客厅以过道为分割,开放式的布局设计,大理石面餐桌紧靠吧台,大型厨电向餐厅借位,解放原本较小的厨房空间
▲ 餐厅背景延续白墙,装点艺术挂画,红色和蓝色结合的舒适座椅,简约时尚
▲ 餐厅通往厨房的动线,设计一个拱形门,刷成与空间中呼应的红,增加趣味与个性
▲ L型布局的厨房,采用灰色水磨石瓷砖搭配蓝色柜门,金色的拉手让整体看起来更加清新优雅
▲ 客卫空间通过蓝+灰+白的基调,打造出时尚美感
▲ 书房的整体设计与用色相对保守一些,大面积的白与木色搭配,通过一抹红色与整个设计风格相互调和
▲ 榻榻米的设计让书房兼具收纳与客卧的功能
▲ 次卧整体基调偏性冷淡,留白墙面用装饰画点缀端景,利用层次渐进的软装做大面积的点缀
▲ 床边的金属材质置物架结合壁灯与衣柜拉手,以跳脱的色彩打破静谧,丰富层次感
▲ 主卧的整体设计延续温柔轻奢风,以蓝红白为空间基调,床背景局部采用墨蓝色系,打造就寝空间的浪漫氛围
▲ 床头一角,通过米褐色与金属元素点缀,空间内的柜体都完美融入墙面中
▲ 主卫干湿分区,干区采用大面积的红色点缀蓝色天鹅绒矮凳,满足洗漱功能的同时兼做女主梳妆台
▲ 主卫白色搭配吸睛的一抹暖橘,设置壁挂马桶,上面装壁挂洗衣机
设计 | TK原创设计(杭州)
微信:tk_design
电话:15957143882
后台回复「TK」可以看更多作品
媒体转载请注明装修33天并保留设计师联系方式
欢迎业主、设计师、装修公司免费投稿照片
装修33天商务合作微信:king194316
松爷店铺掌柜微信:yejia1702
TK原创设计其他作品推荐,点击下图查看89平孟菲斯风两室 复古又精致
实用装修指南
装修33天 🏡 实用装修指南
喜欢我们的文章就随手转发到您朋友圈