点上方蓝字可关注 微信号:装修33天
▲ 建筑面积90平,本案设计师为一家四口改造老房,有爱的父母想给两个孩子一个安全开敞,能启发艺术创造力的家
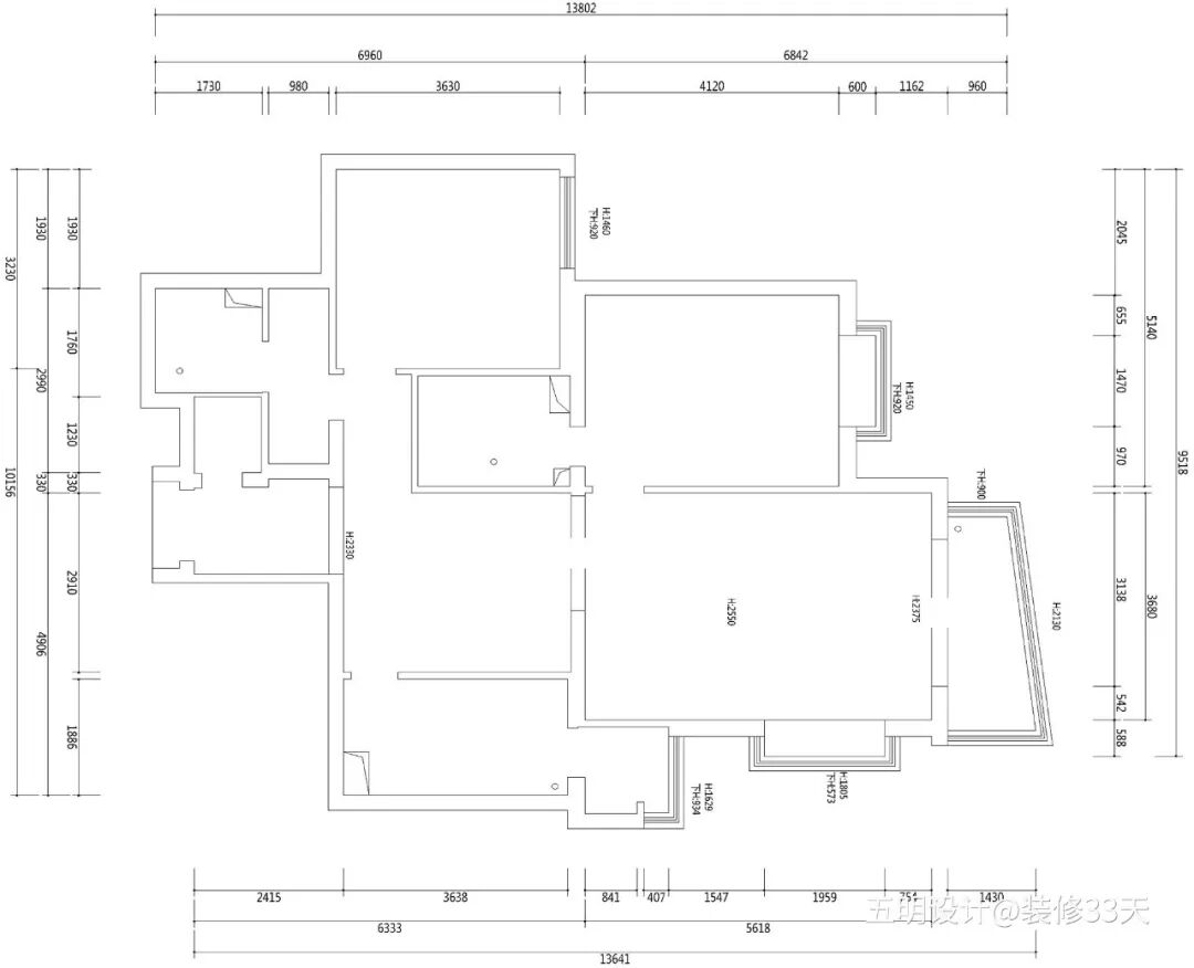
▲ 平面结构图
▲ 平面布置图
▲ 客厅,设计整墙书架,结合吉他与钢琴,书与投影,诗和远方,呈现文艺范儿空间
▲ 将原始小飘窗降低台面高度,与客厅融合,布置成孩子的活动区,并拓展客厅的使用面积
▲ 一家人可坐在客厅陪伴宝宝玩耍,窗帘进行简易的区域划分,切换简易版家庭影院让客厅成为全家人的主要娱乐休闲空间
▲ 客厅的多功能性把家人齐聚在一个空间中,让客厅散发出闲适氛围
▲ 客厅一角摆上电脑桌,形成办公区,与厨房之间采用开放式隔断,从视觉上延伸客厅空间
▲ 厨房,餐厨合一,餐桌也可以变成操作台,宝宝可以坐在椅子上陪伴妈妈做饭,增加亲子互动
▲ 厨房也采用了大量木质元素,橙黄色的吊灯让厨房环境显得更加温馨
▲ 在餐厅过道处布置端景,缩小洗手间面积,嵌入收纳柜加入灯光与玻璃柜门
▲ 次卫,木纹砖搭配米粉色墙砖,采用粉桃浴帘取代玻璃淋浴房
▲ 过道,顶面采用木质元素装饰,与房屋整体调性相统一,内嵌灯光简单却更具设计感,一侧墙面涂上黑板漆,满足童年的天马行空
▲ 黑板墙的对面是入墙式杂物柜
▲ 走廊直通儿童房
▲ 肉粉色的背景墙,搭配宜家铁件儿童床和粉粉的床品,科技感的银色床边柜让整个空间变得更有趣
▲ 在儿童房内设置大小双床,满足一家四口人的睡眠需求
▲ 主卧,整体配色与格调呈现复古调调,浅抹茶绿的纯粹墙面搭配实木高背床,对称的金色壁灯提升质感
▲ 用一株细长枝叶的绿植点缀淡雅清新
▲ 在进门处,左手边空置处一个小小的空间,装上灰色的拉帘,变身成小而精的衣帽间
▲ 主卫,墙面采用明度较低的浅灰色与木质盥洗台搭配,整体更显层次,有质感
设计 | 五明原创设计(北京)
微信:136503506
后台回复「五明」可以看更多作品
媒体转载请注明装修33天并保留设计师联系方式
欢迎业主、设计师、装修公司免费投稿照片
装修33天商务合作微信:king194316
松爷店铺掌柜微信:yejia1702
五明原创设计其他作品推荐
自然混搭风三代同堂 一个百变模式客厅
实用装修指南
装修33天 🏡 实用装修指南
喜欢我们的文章就随手转发到您朋友圈吧