点上方蓝字可关注 微信号:装修33天
▲ 测量面积140平,造价45万(不含部分家电),玄关,黑白地砖几何拼接,设置整墙白色亮面鞋柜,搭配宝石蓝换鞋凳,整体美观又实用
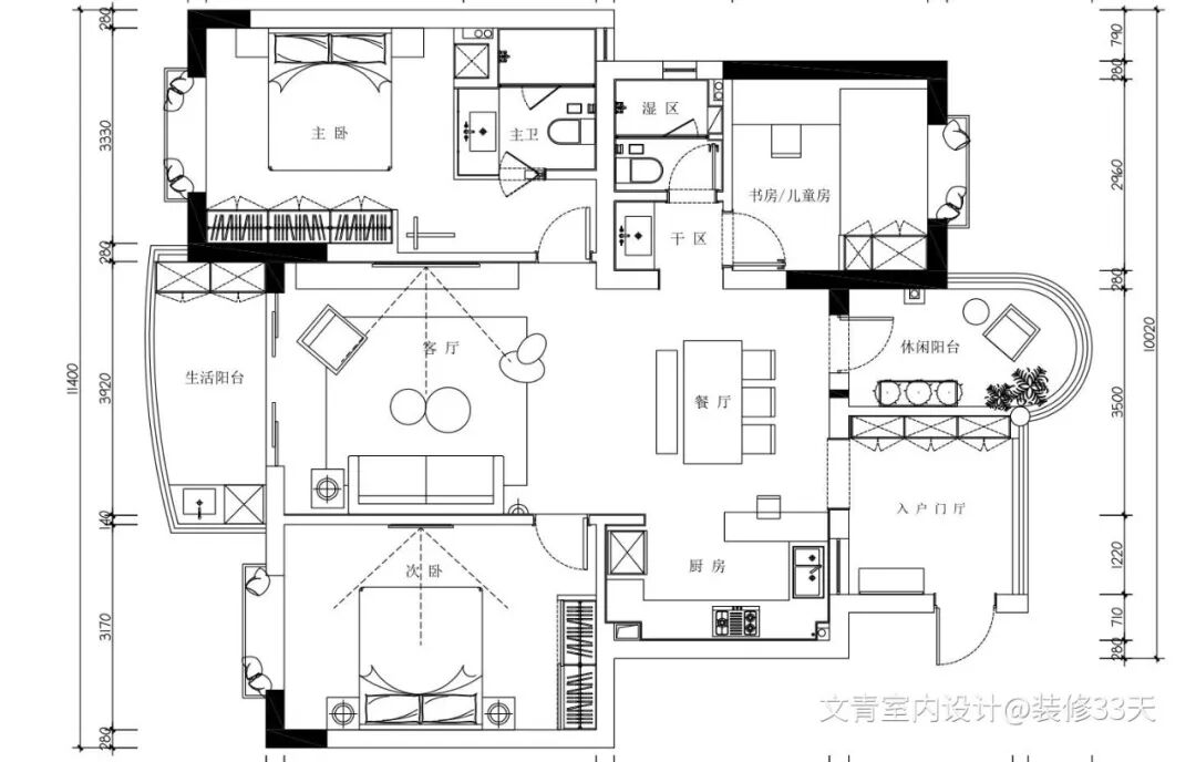
▲ 平面布置图
▲ 客餐厨开放式布局,地面通铺灰色仿大理石瓷砖,木饰面背景中和黑白灰空间带来的冰冷感
▲ 客厅与阳台采用玻璃移门隔断,白纱+深色窗帘凸显层次
▲ 地面加铺大张黑色造型地毯,家具选用灰色布艺沙发、咖色皮质单椅与白色大理石茶几组,质感丰富
▲ 木饰面背景修饰现代挂画,在黑色摇臂灯左侧隐藏卧室门片
▲ 留白电视墙点缀线性吊灯,地面设计灰色大理石地台取代传统电视柜
▲ 客厅望向餐厨视角,南北通透,采光良好
▲ 餐厅,白色大理石餐桌与皮质餐椅,搭配现代多头吊灯,精致的餐具与铜元素摆件让生活充满仪式感
▲ 开放式厨房,整体定制白色亮光橱柜,并预留大型厨电位置,错落台面设计,打造更加舒适的料理区域
▲ 台面延伸出休闲吧台,一盏玫瑰金吊灯衬托出高级感
▲ 客卫,干湿分区,提高使用效率,镜柜上下隐藏暖光源
▲ 次卧,灰色素雅的空间,加入简约的家具与床品,带来舒适的休憩氛围
▲ 儿童房,以蓝色为基调,定制榻榻米延伸设计架空书桌,立面设计双层加长隔板,方便收纳书籍与摆件
▲ 主卧,延续整体基调,无主灯顶面搭配灰色硬包背景,宝石蓝窗帘提升空间色彩
▲ 因为过道太窄,所以舍去靠背,床头 IC Lights 恒星系列吊灯,金属元素增加格调与精致度
▲ 床尾设置大面积定制柜,满足空间收纳,与主卫的隔墙局部用玻璃替代,把采光引入主卫
▲ 主卫,墙面竖铺灰色石纹砖,黑框玻璃淋浴房地面采用石材拉槽设计
设计 | 文青室内设计(杭州)
微信:13588798462
后台回复「文青」可以看更多作品
媒体转载请注明装修33天并保留设计师联系方式
欢迎业主、设计师、装修公司免费投稿照片
装修33天商务合作微信:king194316
松爷店铺掌柜微信:yejia1702
文青室内设计其他作品推荐
实用装修指南
装修33天 🏡 实用装修指南
喜欢我们的文章就随手转发到您朋友圈吧