点上方蓝字可关注 微信号:装修33天
▲ 坐标:北京,本案原来是一个下跃的复式,业主在购置这套二手房的时候,只买了负一层,室内面积150平+30平下沉式庭院,业主是一个90后南京女孩,从装修开始到项目结束,所有环节全程参与,要求将生活品质最大化,以及方便两只猫的活动
▲ 原始结构图
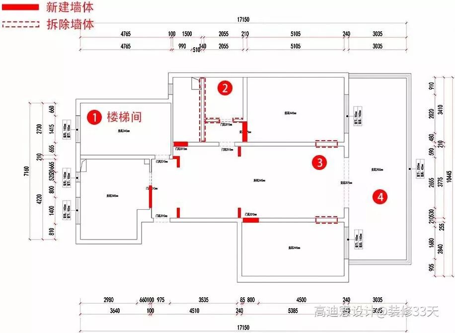
1.将楼梯封掉,上下两层分开,楼梯间改成厨房;
2.将两个卫生间打通合并成一个;
3.将三居保留一居,另外两个分别改成衣帽间和健身房,重新调整门洞位置,动线更加合理;
4.庭院局部景观设计+休闲区;
▲ 平面布置图
▲ 玄关,打造白色鞋柜,局部留空设置换鞋凳与小件收纳区,一面精致的复古落地镜靠墙放置,满足爱美的自己
▲ 入户端景设计厨房双面色隐形门,背面采用墨绿色,与厨房色调一致
▲ 厨房,U型布局,大面积墨绿色中部穿插暖木棕,复古典雅,做旧质感的木地板与木色吊顶呼应
▲ 从橱柜把手、龙头到餐具全部统一金色,与墨绿色完美搭配,吊柜底部嵌入隐形光源,保证台面采光充足
▲ U型橱柜纳入大型厨电,白色大理石台面与背景提升空间明度,背景做隔板置物装饰
▲ 客餐厅相连,地面延续玄关浅色木纹地板,考虑到两只猫咪,所以选用橡木家具,减少棉麻和织物用品
▲ 美式沙发搭配文化砖背景,勾勒白色石膏线,两侧辅以复古台灯修饰,营造淡淡的美式乡村气息
▲ 客厅与庭院相邻,采用整墙金框玻璃移门作隔断,同时满足室内采光
▲ 电视背景通过白色竖条纹护墙板,打造层次感背景墙(因为在负一层,环境相对独立安静,客厅做一整套环绕式音响,也不会打扰到别人)
▲ 客餐厅以垭口作自然分隔,白色美式餐桌椅搭配复古吊扇灯与壁钟,一侧打造整墙餐边柜,满足餐厅收纳与装饰,角落设计的猫咪小屋与空间美式乡村格调呼应
▲ 主卧,经典的美式高背床搭配浅咖色软包背景,空间加入金色的床头柜、灯饰等配饰,尽显高贵大气,白色百叶衣柜延伸设计转角梳妆台,灰色吊顶嵌入白光灯带制造悬浮效果
▲ 窗外的庭院景色宜人,成为室内最美的装饰
▲ 将近15㎡的衣帽间,整体设计开放式柜体,把鞋子、衣物、饰品区分开,提供更为便利的生活机能
▲ 多功能健身房,层次感木质吊顶设计整套灯光设施,四周镜面墙延伸空间,齐全的设施满足多重娱乐功能
▲ 卫生间,浅咖色墙面与黑色柜体碰撞又相互融合,金属元素分布在空间各个角落,提升生活品质
▲ 将两个卫生间合并成一个后,有足够的空间满足不同的洗浴需求,镜面柜收纳清洁工具
▲ 庭院正中间设计文化石水幕墙,搭配绿植与阳光,营造出回归自然的效果,两边是两个独立的功能区
▲ 庭院顶面采用玻璃封顶,并增设遮阳布,让空间不受天气因素影响
▲ 品茗区,沏一壶茶,在绿植与花香包围中享受阳光,感觉时光便慢了下来
▲ 休闲区,躺在沙发床,捧上一本书,远离城市的喧嚣,享受安静的独处
▲ 庭院夜景,通过多种灯光的设计,将绿植、水幕墙展现的淋漓尽致,营造出唯温馨的氛围
设计 | 高迪愙设计事务所(北京)
微信:15010642960
电话:010-53635019
后台回复「高迪愙」可以看更多作品
媒体转载请注明装修33天并保留设计师联系方式
欢迎业主、设计师、装修公司免费投稿照片
装修33天商务合作微信:king194316
松爷店铺掌柜微信:yejia1702
高迪愙设计事务所其他作品推荐
满屋乐高的家有点酷 117平蓝白撞色混搭两室
实用装修指南
装修33天 🏡 实用装修指南
喜欢我们的文章就随手转发到您朋友圈吧