点上方蓝字可关注 微信号:装修33天
▲ 建筑面积198平,入户设计置顶隔断化解进门直对卧室的尴尬
▲ 一层平面布置图
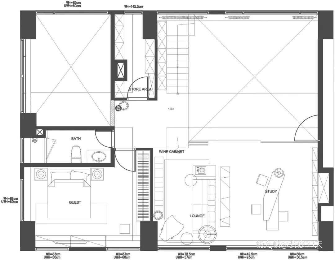
▲ 二层平面布置图
▲ 现代人对空间的追求不仅是舒适美观,逐渐转变为自然环境借景与艺术的态度
▲ 本案设计师在与客户了解沟通之后,尝试新的美学形式,设计中透过自然光线的优势,加上4.2米的挑高空间,整体空间氛围更显舒适大方
▲ 客厅地面采用原木地板人字铺贴,现代结合复古的优雅,打造低调却不失精致的空间
▲ 客厅木地板加铺柔软的大张地毯,搭配卡其色转角沙发,挑高的空间搭配极简的吊顶,光影自由穿梭于公领域空间
▲ 几个色彩靠枕与后方置顶加长的紫色系窗帘,恰如其分的装点出空间雅致的调性
▲ 电视背景墙以灰色天然石纹大理石为中心,左右对称辅以饰面板,整体的用色与整室协调搭配
▲ 从二楼俯瞰整个客厅场域
▲ 客厅与餐厅,地面采用不同的材质铺贴,以作场域分割,大张长方形餐桌搭配简约风餐椅,靠墙设计多功能餐边柜
▲ 餐厅望向通往二楼的楼梯区域视角
▲ 温润的木质地板,引导至干净利落的悬壁楼梯,采用玻璃扶手材质,让视觉更为通透
▲ 楼梯区域成为空间亮点,为空间提供大面积收纳展示的空间,同时也成为休闲阅读一角
▲ 从一楼望向二楼视角
▲ 利用层高优势,增加二层空间,并将二层空间设计成休闲区域与书房的功能场域
▲ 主卧入口与卫生间入口均采用隐形门设计,灰色与白色搭配,打造出层次丰富的护墙效果
▲ 主卧,采用不同的铺贴方式延续铺贴木质地板,极简的空间线条采用低饱和的色彩基调,渲染整個居家的柔美与舒适视觉
▲ 更衣室,整体定制多功能衣柜,取消柜门,局部以抽屉的形式收纳,转角延伸梳妆区域,中间增加独立岛柜,简洁大气
设计 | 杨允帧&游滨崎
微信:houhongjun3
设计费800-1200元/平 服务全国
后台回复「杨允帧」可以看更多作品
媒体转载请注明装修33天并保留设计师联系方式
欢迎业主、设计师、装修公司免费投稿照片
装修33天商务合作微信:king194316
松爷店铺掌柜微信:yejia1702
独立设计师 杨允帧其他作品推荐
现代简约度假美墅 空中花园浪漫日光浴
实用装修指南
装修33天 🏡 实用装修指南
喜欢我们的文章就随手转发到您朋友圈吧