点上方蓝字可关注 微信号:装修33天
▲ 建筑面积110平,总造价35万,设计空间的情感诉求,取决于对生活的理解,以及业主内心所真正向往的生活,最得意的人生,是把做过的梦一一实现
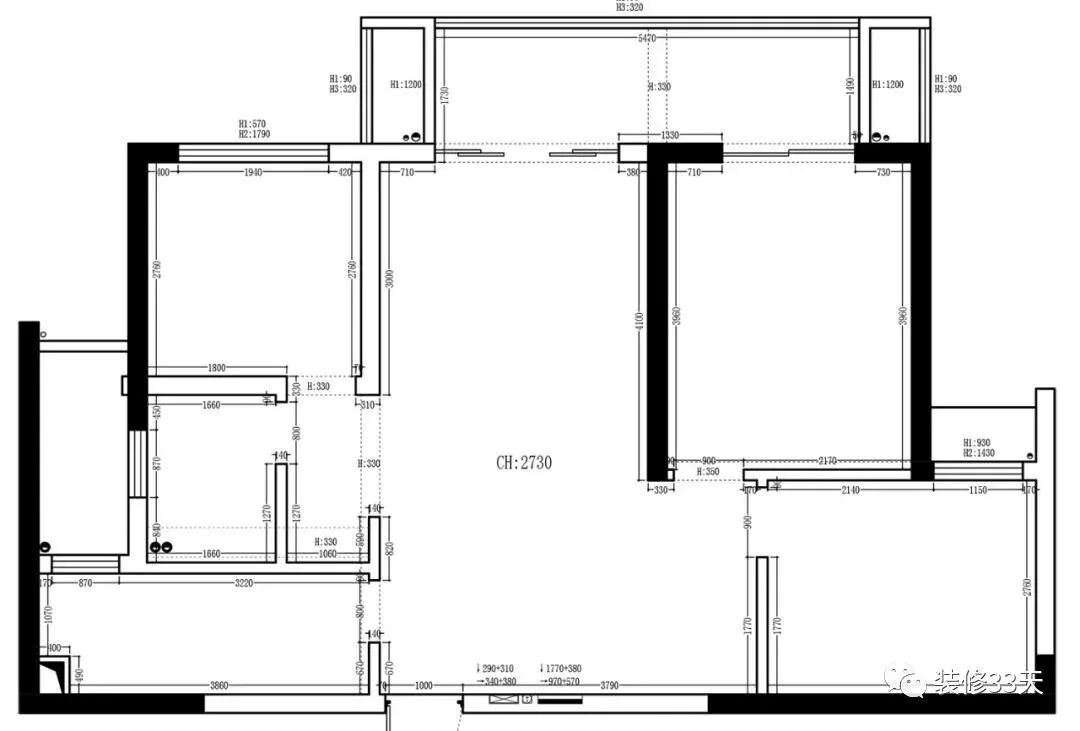
▲ 平面结构图
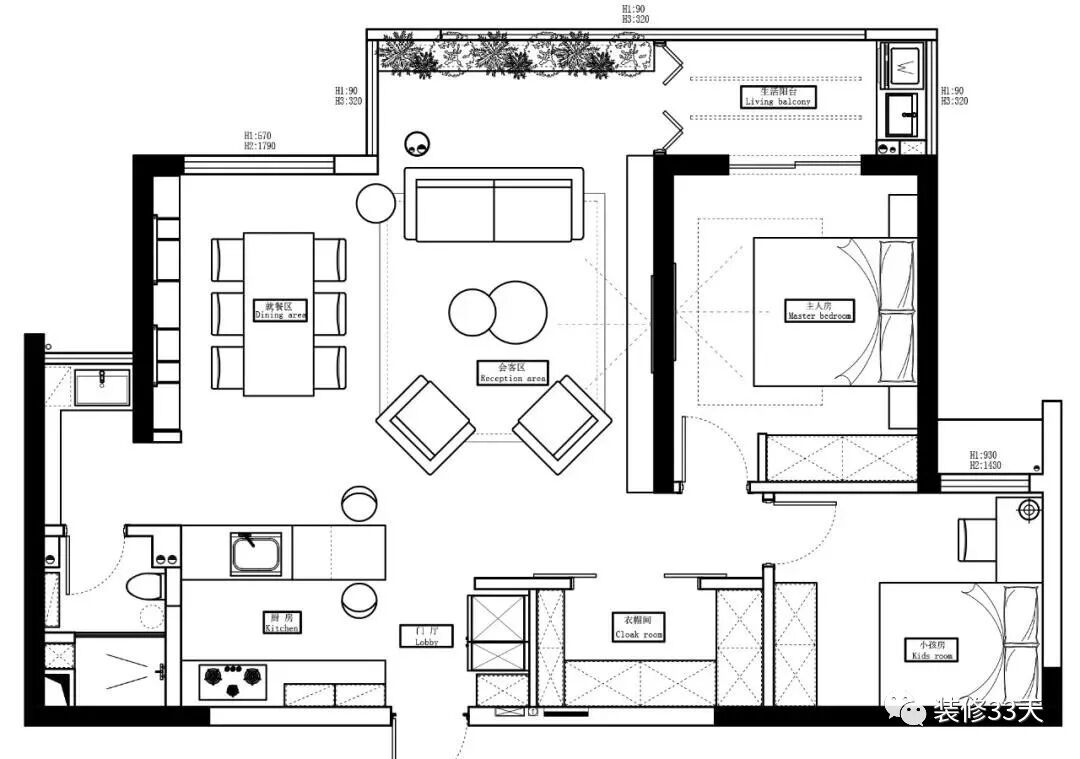
▲ 平面布置图
▲ 整个布局中,仅仅保留两个房间的原始墙,其他墙体几乎被重新定位,改变厨房之前的狭长空间,改成一个方正的开放式厨房
▲ 客餐厨以开放式为布局,保留顶面横梁,并用水泥漆进行涂刷,给空间增加层次感
▲ 客厅纳入阳台空间,拓展公领域使用面积,搭配白色纱帘,装饰极有生命力的天堂鸟修饰,给人一种自然洁净的视觉体验
▲ 阳台的一根水管,则巧妙的包裹成圆柱,保留水管的原始机能,圆柱还为空间作了装饰
▲ 一分为二的阳台,部分留给客厅,另一部分提供晾晒功能,两个区域用长虹玻璃的折叠门隔断
▲ 客厅,木色地板加铺卡其色地毯,黑色皮质主沙发与休闲椅,围合式摆放
▲ 客厅望向餐厅视角
▲ 将原户型的小房间改成餐厅,让开放式厨房和餐厅在纵向线上,同时将之前的餐厅位置,改成储藏室,满足业主收纳需求,在动线上也会更加合理
▲ 原木餐桌搭配长凳+餐椅,黑色的三盏吊灯与后方背景储物柜,配色呼应
▲ 餐厅望向客厅与阳台方向
▲ 开放式厨房融入在整个客餐厅空间之中,水吧台与墙面铺贴统一的大理石纹瓷砖,墙面上方铺贴海吉布,为空间增添低调的时尚感
▲ 儿童房,地面延续铺设木色地板,背景墙用石膏板造型,海吉布上色,打造立体的云朵造型墙,搭配黑色铁件家具,水磨石壁灯
▲ 主卧,整体以大地色系搭配自然的木色为基调,简约的线条明亮的采光,打造舒适的休憩空间
▲ 背景墙用的是水泥压力板铺贴,水泥漆上色,打造的原始水泥自然感,黑色皮质大床与黑色柜体相互呼应,增加些许时尚与个性
▲ 主卧床尾,也可席地而坐,翻上一本喜欢的书,打发一下午的时光
▲ 卫生间干区,采用错落的艺术砖上墙,搭配灰色艺术涂料墙面,设计师现场定高度,让工人铺贴
设计 | 鸿鹄常州站
微信:18015051411
后台回复「鸿鹄常州」可以看更多作品
媒体转载请注明装修33天并保留设计师联系方式
欢迎业主、设计师、装修公司免费投稿照片
装修33天商务合作微信:king194316
松爷店铺掌柜微信:yejia1702
鸿鹄常州站其他作品推荐
实用装修指南
装修33天 🏡 实用装修指南
喜欢我们的文章就随手转发到您朋友圈吧