点上方蓝字可关注 微信号:装修33天
▲ 项目面积35平,层高4.6米,总造价20万,入户区地面采用花砖与木地板拼接,并以此做场域分割,左侧设计切面玄关柜,满足玄关储物机能,同时让动线更加合理
▲ 一层平面布置图
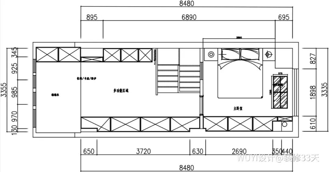
▲ 二层平面布置图
▲ 厨房在入户区,实现动静分离,地板的木色延伸至橱柜柜门,上柜置顶设计采用白色柜门消除空间的逼仄感,在上柜底部加入灯条,增添洗切的便利性
▲ 入户望向起居空间,大面积的飘窗辅以点光源照明,大面积的原木色地板延伸至楼梯
▲ 沿着入户动线进入客厅场域,设计一体化收纳电视背景墙,兼具三只喵星人的活动空间,设置亚克力门板,进出自如,深灰色沙发床的机能让客厅随时变成客房
▲ 白色的电视背景柜体,在靠近飘窗阳台处设计开放格,结合休闲飘窗,可在此借着阳光阅读片刻
▲ 左边柜体收纳的内部,隐藏着洗衣机和烘干机,电视柜不仅收纳力爆表,内里亦是大有千秋
▲ 储物飘窗兼具餐厅卡座的功能,这里既是休闲区域,又是居家的阳光餐厅
▲ 卡座上方的吊顶设计钢化玻璃,延伸视觉上的通透感解决层高不足,同时起到增加采光的功能
▲ 利用4.6米的层高,挑高增添隔层,功能分区明确,实现动静分离,原木踏步增加隐形光源,凸显层次营造温馨氛围
▲ 采用玻璃扶手保持空间视觉的通透性,从二楼可透视至一楼客餐厅
▲ 二楼,从卧室到过厅,设计整排储物柜,小户型也能拥有豪华衣帽间,柜体之间的一组镂空格,放上心仪的摆件,成为上到二楼的端景
▲ 多功能区域,设计储物地台,定制书桌书柜,同时可以是活动室,可以是茶室也是临时客房的功能
▲ 安装投影设备,满足业主的观影需求
▲ 留宿时,把过道中间的隐形门拉开,就轻松变成小两室,确保各个空间的私密性
▲ 主卧,采用纯粹自然的色彩基调,木饰面半高床背板间以床头置物一体化设计,上方结合白色乳胶漆壁面,床背景顶部做圆弧处理,隐藏空调走线
▲ 个性线性吊灯与艺术装饰画修饰主卧背景
▲ 主卧床侧留出一个长方形窗洞,木饰面的围边与床背景呼应
▲ 采光窗的玻璃采用电子雾化技术,瞬间通透的玻璃变成雾化的白色,透光不透影,确保业主隐私,将收纳柜设置在床尾,与外部过厅的柜体形成一个平面
▲ 空间极限的情况下还坚持实现了卫生间三分离的模式,每一个犄角旮旯都被合理利用,满足一家三口的生活所需
文字编辑 | 深深
设计 | WUYI设计(江苏南京)
微信:wu050090
后台回复「WUYI」可以看更多作品
媒体转载请注明装修33天并保留设计师联系方式
欢迎业主、设计师、装修公司免费投稿照片
装修33天商务合作微信:king194316
松爷店铺掌柜微信:yejia1702
WUYI设计其他作品推荐
实用装修指南
装修33天 🏡 实用装修指南
喜欢我们的文章就随手转发到您朋友圈吧