点上方蓝字可关注 微信号:装修33天
▲ 建筑面积140平,精装房硬装+软装改造总价35万,业主希望能有一种在拥有一定私人空间的同时还能做到孩子的陪伴,保证孩子安全感的室内设计
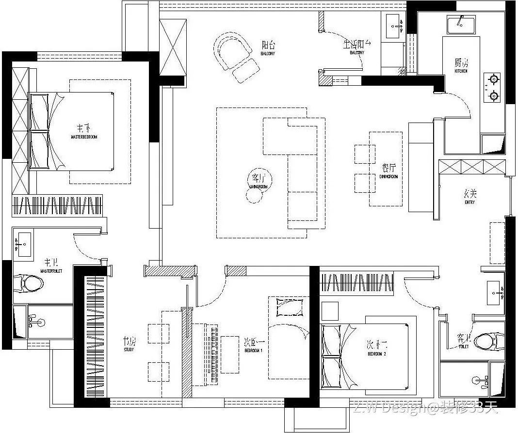
▲ 平面布置图
▲ 入户增加隔断,缓冲视觉,同时让餐厅墙面更加完整,白色大理石地面+水泥灰质感的玄关收纳柜+木作的搭配,高级干净简单又不失温暖
▲ 客厅纳入阳台拓展使用空间,映入更多采光,地面通铺原木色地板,极简顶面无主灯设计,保留部分阳台,辅以轨道移门,规划出空间适宜的生活阳台
▲ 深灰色L型布艺沙发搭配实木茶几,造型方正简练,在舒适的休闲场域聊天、阅读、亦或是游戏,不论是二人世界还是一家三口,这个家都能包容成长
▲ 客厅小景
▲ 现场木作电视墙与隐形门的结合,创造室内空间的无限可能,为接下来的主卧,书房、次卧及客厅形成隔而不断的空间提供必要前提条件
▲ 木皮辅以线条感的电视墙,打造白色开放式架空置物柜,辅以装饰画与线性吊灯修饰背景
▲ 电视背景墙的木色,延伸至阳台的另一面角落,利用空间打造半开放式储物柜与书架,借阳台的日光星辰,安静的读一本好书
▲ 客厅望向沙发后方的餐厅区域
▲ 餐厅,大面积自然木色为基调,设计储物卡座结合餐椅,最大化利用空间,黑色造型吊灯营造就餐氛围的同时增加层次感
▲ 卡座背景以木色上墙,平面结合鱼骨拼的造型,安装壁灯作修饰
▲ 书房,蓝灰色墙面搭配木色地面与柜门,加长书桌安排双位设计,提高使用率,利用墙面收纳装饰背景墙,后方的大衣柜让书房兼具衣帽间的机能
▲ 客厅电视背景墙+隐形门设计,实现三室连通=主卧、书房、儿童房形成隔而不断的布局
▲ 次卧也是将来的儿童房,静谧的蓝灰,搭配柔软高级的灰色床品,咖啡棕的纯色背景结合整面木纹柜门,为空间增添温度
▲ 低饱和蓝灰色贯穿书房与主卧,木质床背上方打造大容量柜体,白色柜门与木皮形成层次背景
▲ 床背景与床头置物形成整体,床品与窗帘相互呼应,玻璃材质的台灯成为软装的亮点
▲ 床侧依旧是大面积的收纳柜体,与床背景上方的柜体形成主卧储物系统
文字编辑 | 深深
设计 | Z.W Design(成都)
微信:WalkmanofSaturnRing
后台回复「ZW」可以看更多作品
媒体转载请注明装修33天并保留设计师联系方式
欢迎业主、设计师、装修公司免费投稿照片
装修33天商务合作微信:king194316
松爷店铺掌柜微信:yejia1703
Z.W Design其他作品推荐,点击下图查看123平自然调五口之家 木质牛油果绿学区房
实用装修指南
装修33天 🏡 实用装修指南
喜欢我们的文章就随手转发到您朋友圈吧