点上方蓝字可关注 微信号:装修33天
▲ 使用面积89平,造价25万,进门,映入眼帘的是由橡木实木屏风+长虹玻璃屏组合而成的书房『墙面』,右侧的鞋柜与客厅电视柜相连
▲ 原始结构图
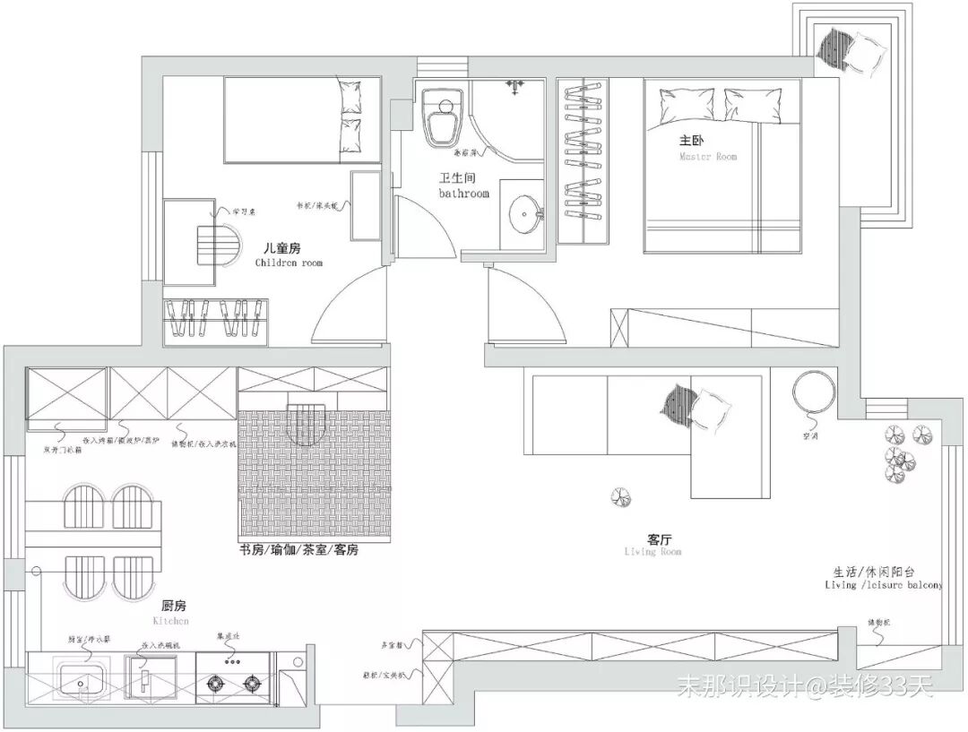
▲ 平面布置图
▲ 客厅纳入阳台,取消传统茶几的摆放,地面加铺大张编织地毯,给孩子提供宽敞的活动空间
▲ L型布艺沙发搭配灰色背景墙,采用松木线条与装饰画修饰
▲ 现代造型的吊灯,增加层次与氛围
▲ 打造整墙电视储物柜,不同的开门方式结合内部细节,收纳功能强大,顶部嵌入投影幕布,提高观影体验
▲ 客厅望向书房,长虹玻璃屏风隔断空间的同时还不会带来视觉上的阻隔
▲ 书房的结构是结合了屏风以及简化后中式凉亭的结构而来,设置高度220mm的榻榻米,放下苎麻帘可以当客卧,兼具客房、茶室、亲子活动的功能
▲ 书房连接客餐厅,增进空间之间的联系与互动
▲ 开放式餐厨空间,黑白几何纹路的墙地砖为空间增添活力,餐桌由厨房台面延伸设计
▲ 餐厅设计整面储物柜,容纳了双开门冰箱、消毒柜、蒸箱以及洗衣机
▲ 厨房,选用集成灶,白色亚克力柜门搭配石英石台面,便于日常清洁打理
▲ 儿童房,定制榻榻米结合开放格与柜体,将空间利用最大化
▲ 主卧延续整体风格,水墨远山壁纸与松木线条结合,搭配浅色系床品,营造雅致就寝空间
▲ 床尾打造多功能柜,兼具梳妆台与书桌机能
▲ 卫生间,白色石纹砖搭配黑色马赛克背景,圆形镜柜美观实用,浴室柜把手可用于毛巾收纳
▲ 马赛克背景延伸至玻璃淋浴房,少许金色点缀增加高级感
文字编辑 | 东东
设计 | 末那识设计(天津)
微信:13116008180
后台回复「末那识」可以看更多作品
媒体转载请注明装修33天并保留设计师联系方式
欢迎业主、设计师、装修公司免费投稿照片
装修33天商务合作微信:king194316
松爷店铺掌柜微信:yejia1703
末那识设计其他作品推荐
实用装修指南
装修33天 🏡 实用装修指南
喜欢我们的文章就随手转发到您朋友圈吧