点上方蓝字可关注 微信号:装修33天
▲ 使用面积130平,入户墙面设置挂钩与仪容镜,满足玄关基本功能的同时丰富立面装饰
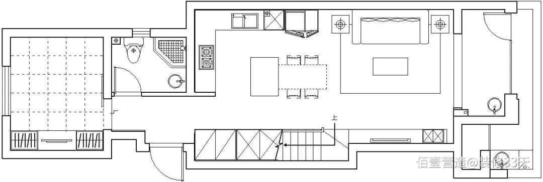
▲ 一层平面布置图
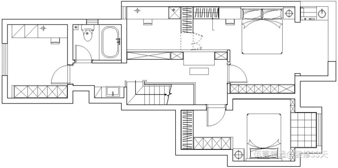
▲ 二层平面布置图
▲ 经过玄关,即为开放式餐厨区域,与客厅空间互通,整体宽敞明亮
▲ 岛台和餐桌合并设计,白色大理石台面搭配黑黄撞色吧椅,厨房整体定制白色亮光橱柜,方便打理
▲ 餐厨望向客厅视角,左侧预留双开门冰箱位置
▲ 客厅,浅色瓷砖加铺大张拼色地毯,留白顶面采用点光源设计,简约富有质感
▲ 暗橙色沙发提亮空间,黑白错落茶几组,与墙面装饰画色调呼应
▲ 采用投影幕布取代电视,左侧设计黑色开放格,与楼梯相连的地台充当电视柜
▲ 阳台设置小吧台,打造休闲一偶,享受悠闲的午后时光
▲ 阳台望向客餐厨视角
▲ 楼梯采用玻璃扶手增加通透性,利用下方空间设置储物柜
▲ 二楼走廊设计整墙半开放式储物柜,并预留出钢琴区,柜体内部增设光源,提升颜值与格调
▲ 榻榻米休闲室,设计升降桌,打造一家人向往的活动、休闲空间
▲ 多功能房,储物柜延伸出开放式书架与书桌
▲ 书桌边上放置折叠沙发,必要时可兼做临时客卧使用
▲ 女儿房,灰粉色床品搭配金框趣味装饰画,利用飘窗打造储物休闲角
▲ 设计蓝粉色转角柜体,精致美观,满足女儿衣物收纳
▲ 主卧与阳台相连,大面积玻璃窗满足室内采光,橙色软装点缀空间
▲ 床侧设计架空书桌,同时兼具梳妆台机能,顶部设置层板,配合收纳盒一起使用
▲ 根据业主工作需求,在主卧内部隔出办公区,同时不影响外部空间
▲ 二楼卫生间,干湿分区设计,设置镜柜可以保持台面干净
▲ 设置浴缸实现泡澡需求,拼色瓷砖铺贴背景
文字编辑 | 东东
设计 | 佰壹营造(江苏)
微信:18652888202
后台回复「佰壹」可以看更多作品
媒体转载请注明装修33天并保留设计师联系方式
欢迎业主、设计师、装修公司免费投稿照片
装修33天商务合作微信:king194316
松爷店铺掌柜微信:yejia1702
佰壹营造其他作品推荐
实用装修指南
装修33天 🏡 实用装修指南
喜欢我们的文章就随手转发到您朋友圈吧