▲ 使用面积120平,精装修改造总价35万,本案屋主是一对从事金融与IT的年轻夫妇,一对有趣的灵魂,希望日式简约的屋子基调取代槽点满级的精装风,还他们一个趣味满满的家
▲ 平面结构图
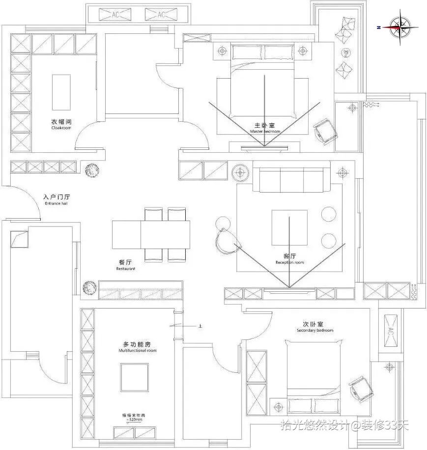
▲ 平面布置图
▲ 经过入户门厅后即见餐厅,藤编椅搭配可伸缩餐桌,不光满足屋主俩的日常下厨,偶尔三五客人造访也不用担心坐不下
▲ 原木色的餐桌与吧台相连,白色的吧台与大面积的木色融合在一个空间,满足实用性的同时,在绿植的映衬下制造自然舒适的居家环境
▲ 木片造型灯营造质朴的就餐氛围
▲ 过厅放一组日式玄关柜,兼具客餐厅收纳功能
▲ 餐桌对面的操作台,是厨房的延伸区、也可做西厨使用,烘焙或者摆放小家电都随自己心意
▲ 餐厅望向客厅视角,客餐厅互通,地面通铺极为自然的木色地板搭配留白的墙面,大部分区域都设计收纳柜来储存物品
▲ 客厅,灰黑色的布艺沙发搭配日式原木茶几,靠枕与地毯色彩呼应
▲ 客厅一角
▲ 过道望向客餐厅视角,原木栏栅做隔断,同时延伸客餐厅背景
▲ 设计榻榻米多功能空间,初衷是女主人希望有亲人朋友来家里有可以会客、玩耍的独立区域,风格与色调保持日式
▲ 将四室的其中一间打造成独立衣帽间,白色置顶柜体搭配隐形拉手,简约又安全,一侧的木色开放式收纳可以当凳子使用
▲ 次卧,留白空间结合原木、编织等元素,看着太舒服了,阳光透过百叶窗倾泻到卧室的每个角落
▲ 主卧,一体式木色半高床背搭配留白墙面,白色绵软的床品与白色纱帘呼应,在阳光下更显纯粹与自然
▲ L型飘窗成为主卧的休闲一角,下方兼具储物空间
▲ 卧室和客厅都设计了桌子方便屋主办公,大量的原木色,温馨且自然
文字编辑 | 深深
设计 | 拾光悠然设计(成都)
微信:shiguang3277653
后台回复「拾光悠然」可以看更多作品
媒体转载请注明装修33天并保留设计师联系方式
欢迎业主、设计师、装修公司免费投稿照片
装修33天商务合作微信:king194316
松爷店铺掌柜微信:yejia1703
拾光悠然设计其他作品推荐
实用装修指南
装修33天 🏡 实用装修指南
你点的每个赞,都是对我们的支持