▲ 使用面积105平,给空间做减法,弱繁就简,借由简洁的设计来削弱房子结构本身的复杂性,从而为业主创造一个宁静、减压的住宅空间
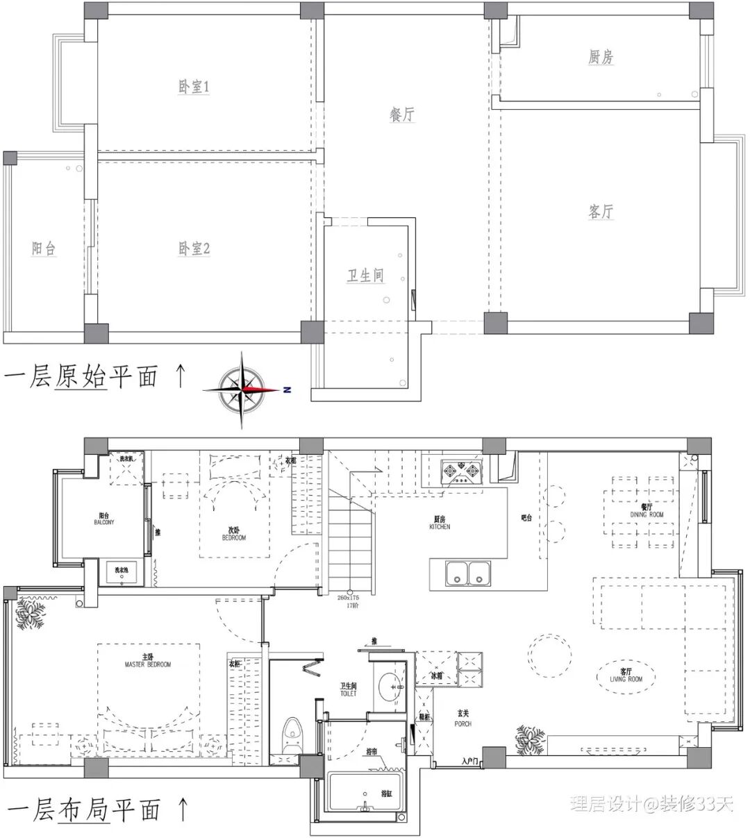
▲ 一层平面布置图
▲ 玄关设计考虑了业主不希望入户直观全室的需求,打造L型柜体,缓冲了视线,增加了收纳,局部留空做了陈列格,摆放自己喜欢的物品
▲ 顶层多出的空间一半当阁楼用起来,一半则留给客餐厅增加挑高,保留了空间结构本身的有趣造型,平衡了大气和实用
▲ 客厅敲掉了飘窗,扩大使用面积,大面玻璃窗提供充足采光,配合挑高的户型更显大气
▲ 黑色电视墙设置L型电视柜,巧妙结合了吊顶造型,底部嵌入灯带,层次感十足
▲ 开放式的格局增进家人间的互动,温润的木色延伸至餐厅背景,与电视背景形成鲜明对比,靠窗设计了一排矮柜+高柜,收纳能力强大
▲ 开放式厨房,扩大空间感,大吸力侧吸油烟机保障油烟不乱串,操作台结合吧台设计,一台两用,节省面积
▲ 上浅下深的橱柜门片搭配灰色瓷砖,台面结合人体工学采取高低差设计
▲ 主卧,黑色背景搭配胡桃木家具,加以黄铜壁灯点缀,靠近玻璃窗的位置规划梳妆区
▲ 侧面设置折叠门衣柜,内部宜家衣帽柜构造,不用担心环保问题,随时可以调节构造,空间利用率高
▲ 卫浴间三分离设计,洗手台外置,马桶区和洗浴区独立,提高使用效率
▲ 在马桶间和浴室之间增设磨砂玻璃窗增加自然采光,智能壁挂马桶搭配马桶喷枪,提供最好的使用体验
▲ 浴室以灰白为主,设置淋浴与浴缸,满足不同的洗浴需求,利用包管位置设计置物台可以方便存放洗浴用品
▲ 楼梯隔墙设置镂空造型,增加楼梯处光线同时呼应空间三角结构,斜边的高度也依循扶手高度来合理设计,楼梯下的空间也设计了收纳柜,不浪费可用空间
▲ 阁楼平面布置图
▲ 从阁楼俯瞰客餐厅空间
▲ 阁楼直接封闭边缘不可利用的鸡肋空间,设置投影和沙发,满足看球赛,打游戏,看电影等多功能需求
▲ 沙发后多余空间为男主人设计了偶尔使用的办公桌
文字编辑 | 东东
设计 | 理居设计(厦门)
微信:15750775711
公众号:理居设计
后台回复「理居」可以看更多作品
媒体转载请注明装修33天并保留设计师联系方式
欢迎业主、设计师、装修公司免费投稿照片
装修33天商务合作微信:king194316
松爷店铺掌柜微信:yejia1703
理居设计其他作品推荐
实用装修指南
装修33天 🏡 实用装修指南
你点的每个赞,都是对我们的支持