▲ 建筑面积60平,造价35万,夫妻二人居住,本案以开放式的姿态呈现,全屋采用 control4 智能系统,打造出现代舒适的家居空间
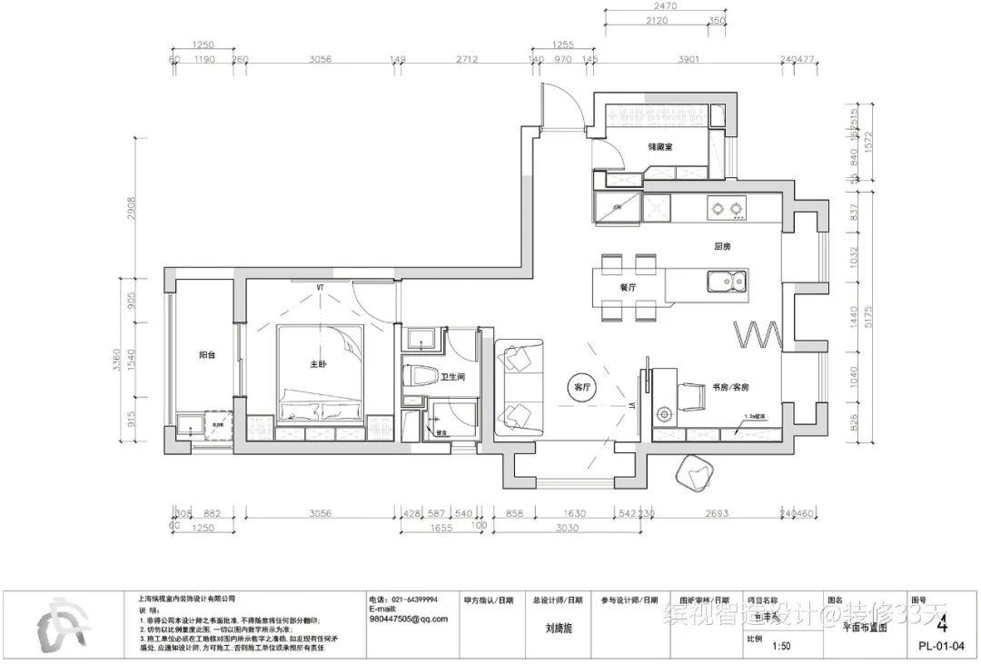
▲ 平面布置图
▲ 客厅,留白墙顶面配合点光源的设计,让空间显得更加宽敞,布置小体量的茶几方便随时移动
▲ 新建黑色电视墙后方是书房空间,全屋采用木地板,柔和的色调让人感觉更加温馨
▲ 开放式餐厨区,将中岛台和餐桌相连,增加使用机能,相互延展使用空间
▲ 餐厨边上的书房区采用长虹玻璃折叠门,可灵活的调节空间模式
▲ 一套简约的餐桌椅搭配造型吊灯,营造舒适就餐氛围
▲ 定制整排橱柜将大型厨电纳入,更加整洁美观,中岛的设计让狭小的厨房有着完善的机能
▲ 书房,从柜体延伸出书桌的功能,靠近书桌的部分设计开放式书架,满足书籍与小物件的收纳
▲ 柜体内部设计墨菲床,不占空间又能提供床位,让小空间功能多样化
▲ 多功能房望向餐厨视角
▲ 主卧,床头两侧与上方空间打造储物柜,吊柜下方留空,具备床头柜的功能,并预留了插座与灯带
▲ 将洗手台外置实现干湿分离,大大提高使用效率
▲ 卫生间以白色为主,结合通透的玻璃隔断,明亮整洁,利用壁挂马桶水箱上方的空间增加出收纳区
文字编辑 | 东东
设计 | 缤视智造设计(上海)
微信号:ispaceid
后台回复「缤视」可以看更多作品
媒体转载请注明装修33天并保留设计师联系方式
欢迎业主、设计师、装修公司免费投稿照片
装修33天商务合作微信:king194316
松爷店铺掌柜微信:yejia1703
缤视智造设计其他作品推荐
70平建面两室也能有独立衣帽间
实用装修指南
装修33天 🏡 实用装修指南
你每次点赞和转朋友圈,都是对我们的支持