▲ 建筑面积120平面,项目地址:杭州·竹海水韵,完工时间2020年5月,设计师从业主内心对家的想象出发,合理规划空间,让设计贴近生活,突显生活态度
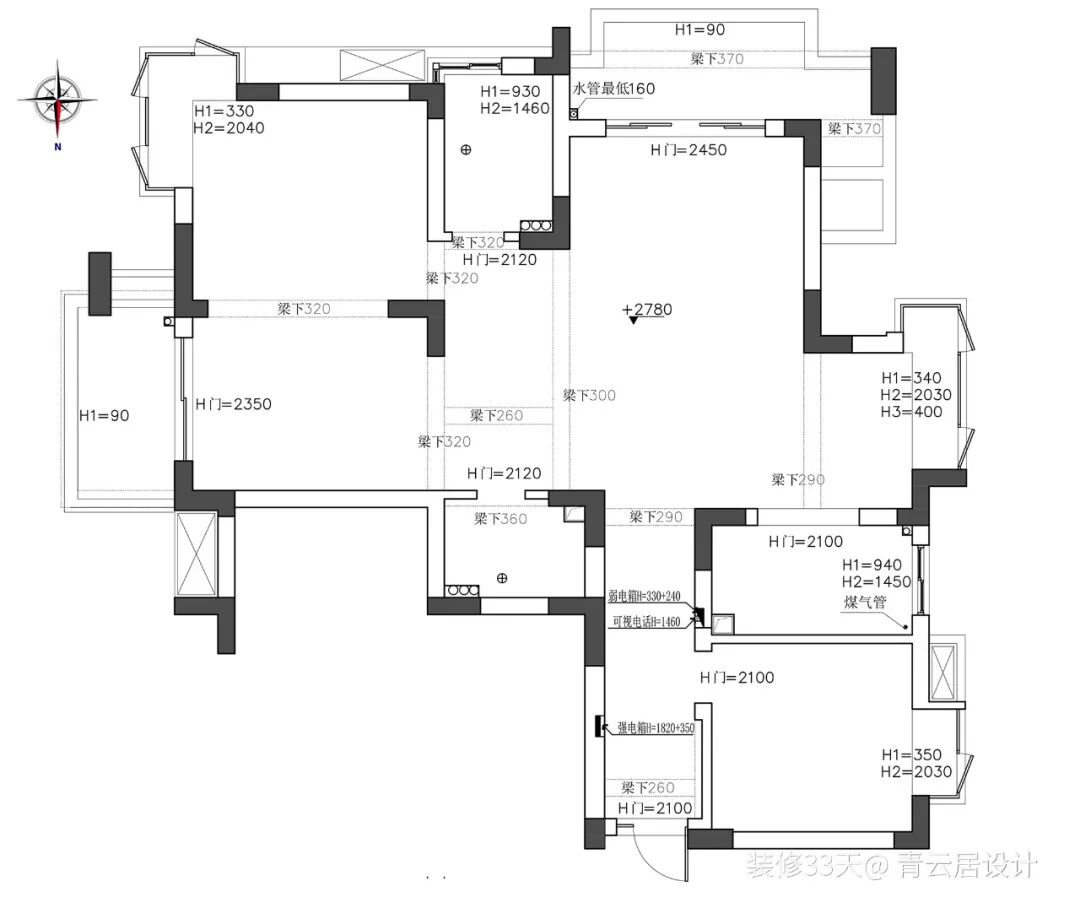
▲ 平面结构图
▲ 平面布置图
▲ 入户左侧设立一个带卡座的换鞋柜,硬包靠背美观实用,柜子外面贴KD饰面板,抽屉下方留20公分,可以放平时经常穿的鞋,设计充分利用空间
▲ 客厅整体利用黑色、咖色等深色系,空间颜色自然过渡,协调统一,利用一些出色的单品来丰富空间色彩
▲ 从地面到墙面,从家具到装饰,均采用大地色系,色彩相互呼应贯穿
▲ 将原阳台纳入客厅,并把转角处的空间作为储藏间使用,将沙发侧边的承重墙贴上KD饰面板结合顶面弧形处理,一来可以装饰二来作为进入储藏间的隐形门
▲ 纳入阳台后的客厅更加明亮开阔,一张绿色单椅打造一处雅致休闲区
▲ 重新规划主卧与客厅的布局,打造以深色石纹瓷砖铺贴的电视墙面为中心的背景墙,左侧是抽象野马墙纸,右侧半开放的置顶柜体满足客厅收纳需求
▲ 客餐厅采用餐边柜与格栅作为空间隔断,不影响空间的采光与视野
▲ 现代风格的餐桌椅搭配玫瑰金玻璃吊灯,中性中带着浪漫与精致
▲ 靠窗位置是西厨,日常使用非常方便,右侧利用转角做一个置顶橱柜,将蒸烤箱等内嵌进去,解放厨房空间
▲ 厨房,黑色细边框玻璃推门,节省空间的同时在视觉上也能让餐厨区域变得更加简洁开阔一些
▲ 客卫外部的过道空间也不浪费,打造一组壁柜增加储物与展示的空间,卫生间内部,大理石的自然纹理,让人恍若置身于一幅水墨画之中
▲ 儿童房,蓝色与白色作为主色调,明亮通透,搭配灰色的沉稳安静,床架靠墙放置,一侧墙面打造衣柜与开放式书架,中间留出合理过道
▲ 床尾规划孩子必备的书桌,拼色窗帘与墙面的色彩搭配非常舒服
▲ 主卧延续各卧室的人字铺木地板与点光源顶面设计,床尾将电视柜延伸阅读区与梳妆台的功能
▲ 现代简约皮质大床搭配灰色硬包床背景,从现代的皮革过渡到自然的木色与石纹,将飘窗规划成卧室的休闲一角
▲ 床右侧采用墙面改造满足床头的书架与合理的主卫空间,玻璃墙将卫生间变成了卧室的背景
▲ 在主卫的外部,两扇白色移门是通过合理的空间规划整合出来的衣帽间
▲ 主卫,玻璃取代实墙,更有利于采光
文字编辑 | 深深
设计 | 青云居设计(杭州)
电话:0571-87655093
微信:18106530545
后台回复「青云居」可以看更多作品
媒体转载请注明装修33天并保留设计师联系方式
欢迎业主、设计师、装修公司免费投稿照片
装修33天商务合作微信:king194316
松爷店铺掌柜微信:yejia1703
青云居设计其他作品推荐
实用装修指南
装修33天 🏡 实用装修指南
你每次点赞和转朋友圈,都是对我们的支持