▲ 使用面积216平,造价42万(不含空调地暖及家电),坐标:安徽芜湖,本案屋主家庭结构是一位医生,一位钢琴老师,一名重点中学高中生准备备考美国高考和一位开朗的奶奶,户型是没有阳台的复式,特点是楼上下的空间几乎一致,设计师通过对空间的重新规划,打造出极简时尚的居住空间
▲ 原始结构图
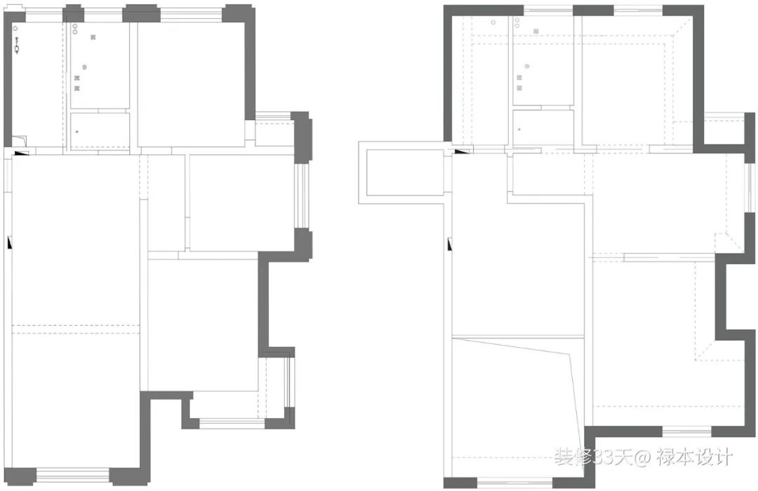
▲ 平面布置图
▲ 进门右手边即为客厅,水泥砖地面加铺同色系毛绒地毯,留白墙顶面处理扩大视觉感
▲ 猴子边几让角落变得生动有趣,明黄色单椅提亮空间
▲ 留白电视墙底部内凹壁龛充当电视柜功能,餐厨区用细框玻璃移门隔断
▲ 把原本朝北的房间做餐厨一体设计,定制L型橱柜合并中西厨,打造高柜将双开门冰箱纳入
▲ 保姆房不需要太多的装饰,以实用为主
▲ 简易朴素的长辈房,小时候木扶手、厚海绵的单人椅,投射着美好回忆
▲ 悬浮镂空楼梯设计,给空间带来高级感
▲ 二楼延续极简风格
▲ 儿童房,水泥漆墙面搭配脏粉色衣柜,利用墙面厚度增设一组玻璃陈列柜
▲ 床尾靠窗处打造学习区
▲ 主卧改成套房结构,衣帽间与书房结合,定制双人位书桌满足两人同时办公
▲ 用玻璃折叠门隔断卧室,右侧一组大衣柜一半在卧室一半在衣帽间,灵活的跨越两个区域
▲ 主卧延续儿童房配色,高级灰+粉色打造甜而不腻的效果
▲ 床头点缀一盏玫瑰金吊灯,小细节提升精致度
▲ 主卫以白色为主,双台盆设计提高生活效率,背面做了整面收纳柜,将洗衣机纳入
▲ 淋浴区采用全透明玻璃门设计,搭配白色调墙砖,清爽明亮,入墙式花洒颜值在线
文字编辑 | 东东
设计 | 禄本设计(芜湖)
电话:0553-5206747
微信:15309639560
后台回复「禄本」可以看更多作品
媒体转载请注明装修33天并保留设计师联系方式
欢迎业主、设计师、装修公司免费投稿照片
装修33天商务合作微信:king194316
松爷店铺掌柜微信:yejia1703
禄本设计其他作品推荐
实用装修指南
装修33天 🏡 实用装修指南
你每次点赞和转朋友圈,都是对我们的支持