▲ 使用面积120平,造价30万(不含家电),项目地址:武汉,完工时间:2019年年底,业主是一名化学老师,希望新家能带给自己温馨与舒适
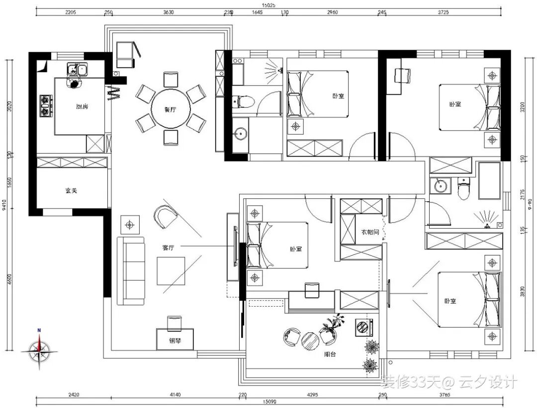
▲ 平面布置图
▲ 玄关,采用白橡木做柜体,搭配白色柜门,中部留空方便置物,内嵌换鞋凳,鞋柜功能全面
▲ 整个客厅以白灰木为基调,通过软装和灯光营造氛围,墙面的层板设计增添收纳与展示功能,同时丰富立面背景
▲ 在角落用陈旧的木箱取代边几,让空间融入更多生活素材
▲ 将北阳台纳入餐厅,拓展餐厅的使用面积,黑胡桃木的餐桌,餐椅+长凳让空间更加灵活,木色与客厅的绿色背景让整室充满自然气息
▲ 餐边柜增加收纳功能的同时还遮挡了原阳台水管,浅木色与胡桃木的沉稳深色相得益彰
▲ 打开餐边的厨房,开放式设计让餐厨连接更加紧密,同时通风和采光更好,左侧L型墙面做成磁性黑板墙,右侧为简餐吧台
▲ 厨房,U型台面最大化利用空间,高低错落的台板更符合人性化,灰色+白色的柜门用金色拉手更显精致
▲ 阳台,地面通铺小花砖,墙顶采用赋有质感的芬兰木,自砌台盆留出洗衣机的位置,沿窗吧台可以享受休闲午后
▲ 男孩房,木地板搭配芥末绿,内凹造型填充柠檬黄提亮空间
▲ 利用阳台面积,挤出一个大大的写字台
▲ 女孩房,粉色背景搭配粉色装饰画,造型主灯与对比色的吊灯点缀空间,借用主卫空间创造嵌入式收纳柜
▲ 主卧,一面湖蓝色床背景成为空间主色调,点缀简易装饰画,床头吊灯营造就寝氛围,大面积的白色置顶衣柜满足收纳需求,另外还有一个衣帽间
▲ 卫生间干湿分区提高使用效率
文字编辑 | 深深
设计 | 云夕设计(武汉)
微信:yunxi-1805
媒体转载请注明装修33天并保留设计师联系方式
欢迎业主、设计师、装修公司免费投稿照片
装修33天商务合作微信:king194316
松爷店铺掌柜微信:yejia1703
实用装修指南
装修33天 🏡 实用装修指南
你每次点赞和转朋友圈,都是对我们的支持