▲ 使用面积65平,造价30万(不含电器),坐标:广东深圳,本案原户型是一房一厅,家里几乎没有承重墙可以实现很多大胆的设计想法,经常出差日本的业主住酒店get到了很多日式收纳精髓,所以对新家在收纳上划了重点
▲ 原始结构图,业主需求:
1.空间允许的情况下需要三个卧室,一个是以后的儿童房;
2.拥有充足的收纳储物空间;
3.想要两个卫生间;
4.开放式厨房+大岛台;
5.客厅需要看投影;
6.保留阳台,平时喜欢吃火锅,但不喜满屋飘香,可去阳台吃;
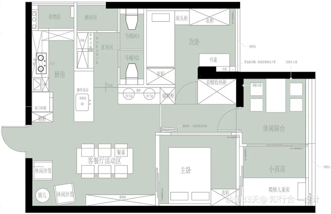
▲ 平面布置图
▲ 入户鞋柜与厨房高柜结合一体,中部留空方便随手置物,底部留空15-20cm收纳居家拖鞋
▲ 入户视角,整屋以大白墙为基调,结合原木色系的柜子与家具,空间温馨简约
▲ 打破传统,客厅不需要大沙发,以原木大书桌为中心,吃饭、办公、看书,统统在这张木桌上实现
▲ 背景做了整面储物柜,中间留空放置常阅读的书,留足了充电插座,各种小家电都可以用
▲ 客厅安装了隐藏式电动幕布盒,一开始就预留了电位
▲ 家里的窗帘都装了双层,一层是柔柔的月光银仿真丝面料,一层轻薄飘逸的白纱
▲ 躺在懒人沙发上看看电影追追剧,舒适惬意
▲ 开放式厨房,岛台的设置能承担厨房的部分功能,高柜嵌入了东芝多门冰箱,刚开工就确定了冰箱款式,预留了冰箱的嵌入位置尺寸和电源等
▲ 木色橱柜搭配白色的墙砖与台面,干净好打理,灶台旁边留了小家电操作区
▲ 女业主不但是收纳达人,更是烹饪爱好者,小厨具摆放的整整齐齐,找东西不会出现左右乱翻的情况
▲ 干粮储物大高柜,厨房一开始就要明确每个收纳柜准备放置哪些物品
▲ 卫生间将洗手台外置,一体式双台盆设计提高生活效率
▲ 利用抬高的改管技术,实现了业主双马桶间的需求,水箱上面用原木色层板点缀空间,增加层次感
▲ 由于作息时间不同,夫妻俩是一人一间卧室,门口的过道定制了双向开门的柜子,里面开是到顶衣柜,过道开是到顶的储物柜
▲ 书柜这个位置是原来的主卧小阳台,用隔音棉包了立管,旁边是承重墙,中间自然形成的凹位,用层板做成书柜
▲ 新隔出的主卧在客厅与阳台的中间,层层递进的设计更赋有层次感,床尾墙面是现场砌了500mm的矮墙再安装透光玻璃,不影响通透和采光
▲ 置顶衣柜点缀黑色线性把手,床头设置阅读灯与灯带,让卧室倍感温馨
▲ 主卧外是未来的儿童房,在宝宝住这之前这里是休闲阳台的一部分,放置了跑步机
▲ 休闲阳台,墙面做了到顶的防腐木,放置折叠餐桌,不用时叠起来放到一边不占空间,秋冬之际可以在这个开放的空间涮着喜欢的火锅
文字编辑 | 东东
设计 | 知行合一设计(深圳)
微信/电话:13530117071
后台回复「知行」可以看更多作品
媒体转载请注明装修33天并保留设计师联系方式
欢迎业主、设计师、装修公司免费投稿照片
装修33天商务合作微信:king194316
松爷店铺掌柜微信:yejia1703
知行合一设计其他作品推荐
实用装修指南
装修33天 🏡 实用装修指南
你每次点赞和转朋友圈,都是对我们的支持