▲ 建筑面积110平,造价50万(不含家电),项目地址:杭州-江南国际城,完工时间:2018年12月,本案例通过户型改造,考虑家庭成员每处的使用情况进行优化设计,最大化利用空间,拥有超大储物却化繁为简
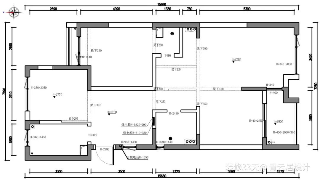
▲ 平面结构图
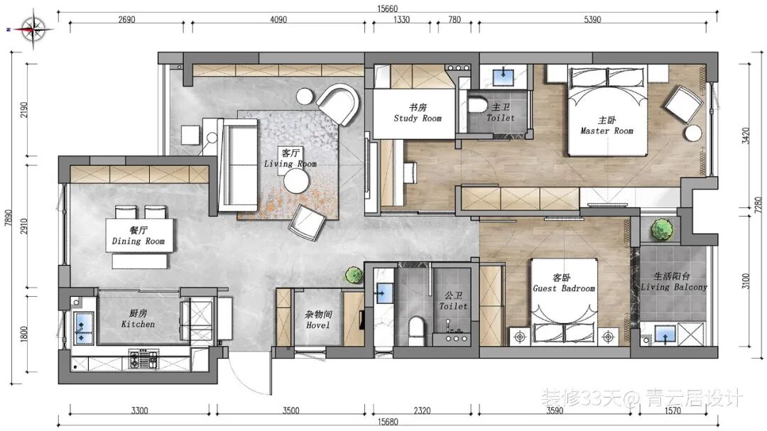
▲ 平面布置图
▲ 原本进门处没有玄关,入门左侧将原先厨房开门做了调整,与餐厅相对,右侧增加鞋柜,并设立杂物间
▲ 将次卧墙推掉规划为客厅中心,扩大公共空间的使用面积,拥有一个敞亮客厅是十分有必要的
▲ 客厅贯通走廊,大面积留白弱化空间让客厅成为焦点,使用少量的元素,呈现更开阔的空间意境,将清新却不失典雅的原木色与现代风格结合在一起
▲ 打造一整面到顶的大收纳柜,考虑到平时的生活习惯预留部分的位置做半开放式处理
▲ 电视背景用简单的线条与大白墙构成,嵌入式设计
▲ 沙发背后巧妙的利用斜角隔板延长后变身吧台
▲ 一面承重墙用斜角吧台做延伸,即是沙发背景,又分割了客餐厅空间
▲ 餐厅通过细节串联,将低调简约融入于其中,实木餐桌搭配餐椅长凳,透过百叶窗叶片,阳光像是被切片过的光束,一片片轻轻洒进屋内
▲ 餐厅旁边是黑色不锈钢隔板,下方一排白色餐边柜,灰色大理石台面,中间空出50公分高度,可以放置些常用物品
▲ 厨房,白色大理石瓷砖墙面搭配白色柜门,结合屋主的身高操作台面高度做成85公分,百叶窗增加厨房的采光度,简约线条勾勒的厨房空间
▲ 原先主卫位置改为书房并与主卧相连组成套房的形式,再将排水管处做一个斜角处理,主卫向内移动,榻榻米+书桌的设计,平时做为书房,客人来时做为卧室,提高空间的利用率
▲ 主卧延续简约格调,整体墙面用低调的灰、白色达到空间元素的统一性,护墙板采用原木色,配以花束点缀,而床品则采用粉色中和一下空间的色彩比例,床尾则是柜体储物空间+梳妆区
▲ 床背景设计隐形灯光,营造就寝氛围
▲ L型大衣柜足够卧室的收纳需求,主卫是一个暗卫,用一块大玻璃做隔墙,达到合理的采光需求,加上拉帘确保隐私
▲ 卫生间墙地面通铺灰色瓷砖,台盆材料选择同色系大理石,完整统一,壁挂马桶让空间利用起来更加灵活,原先下水管道和承重墙之间做壁龛,让墙面更实用
文字编辑 | 深深
设计 | 青云居设计(杭州)
电话:0571-87655093
微信:18106530545
后台回复「青云居」可以看更多作品
媒体转载请注明装修33天并保留设计师联系方式
欢迎业主、设计师、装修公司免费投稿照片
装修33天商务合作微信:king194316
松爷店铺掌柜微信:yejia1703
青云居设计其他作品推荐
实用装修指南
装修33天 🏡 实用装修指南
你每次点赞和转朋友圈,都是对我们的支持