▲ 建筑面积105平+105平,造价72万(不含家电),项目地址:武汉-纽宾凯锦城,完工时间2020年8月,本案是两套105平小三居合并而成的宽敞大宅,屋主夫妻的职业是医生和高管,女主还是支援雷神山的主治医师,他们没有刻意的去追求某种风格,只想新家舒缓自在、独一无二
▲ 平面结构图
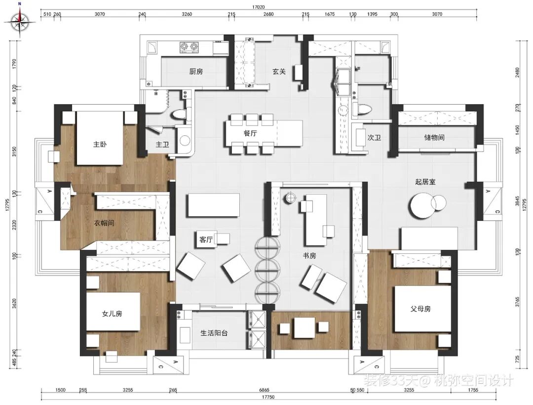
▲ 平面布置图
▲ 玄关,带有光泽和肌理感的艺术墙漆,天然纹理的原木门套,搭配巴塞罗那换鞋凳、复古挂钩、不规则穿衣镜,碰撞出低调摩登的趣味感,镜子的折射透露出鞋柜的“小秘密”,松下旋转式鞋架,轻松收纳全家人的鞋子
▲ 餐厅,柔和的色调、带有时光感的餐桌,定下轻松随意的基调,顶面弧形的吊顶巧妙掩盖梁体,却又保留充足的层高
▲ 两套房的走道区域被巧妙融合在一起,一间厨房设计成封闭式中厨,专门用于烹炒,另一间则被打开,和走道连为一起,成为的西厨、水吧区域
▲ 木工现场制作桌子,配上复古感的大理石桌面,以及郁金香餐椅,气质拿捏的刚刚好
▲ 中厨空间选择女主最喜欢的原木材质,墙面大胆的选用黑色系墙砖,耐油污、好打理,橱柜的高低差设计充分考虑使用者的身高情况,无论是切菜还是炒菜,更符合人性化的使用
▲ 客厅,灰色搭配原木,斑驳的肌理感与原木露出的原生态结疤,质朴、厚重而且温暖的细节,让家有了可供人思考的气氛,低矮的TOGO沙发、包裹感极强的单人椅,用局部的射灯、筒灯、落地灯,刻意调配出富有古典韵味的光线质感
▲ 客厅和书房之间,一扇木头门搭配竖百叶帘,复古和现代巧妙融合,不费力的增添了时髦感,墙面的装饰画,增加视觉层次与趣味性
▲ 用两扇门相互连接书房与客厅场域,既可以对话交流,也可以保持私密
▲ 书房把阳台并入室内,让使用空间变得更开阔,原阳台区域用原木制作地台和顶面形成呼应的同时,也给爱喝茶的男主一个静谧之地,小书桌是精心淘来的,古朴的质感为家添色不少
▲ 书房的充足空间也留出给女儿练习击剑场域
▲ 在老人房的外部打造单独的起居室,专门用来早起看书、看报、看电视,顶面的九宫格样式吊顶搭配绵软的沙发,窗台下方设计成收纳空间
▲ 老人房保持简约温厚,半面木质床背景,配上昏暗柔和的灯光,简简单单就能彰显舒适气息
▲ 女儿房简约清爽,一抹鲜活的橙色足以彰显活泼灵动,床头两侧的床头灯复古味十足,配上两个设计感十足的床头柜,更显巧思和趣味性
▲ 主卧,床头背景使用一整面原木材质,搭配对称的复古绿吊灯与灰色纺织品,安静从容的气质弥漫开来,窗边原本的小飘窗,搭起了桌面,充当临时书桌,睡前看看书
▲ 主卫,干湿分离,提高使用效率,卫生间选择下水道墙排、台下盆、壁挂马桶,便于做卫生
文字编辑 | 深深
设计 | 桃弥空间设计(武汉)
微信:18627061616
后台回复「桃弥」可以看更多作品
媒体转载请注明装修33天并保留设计师联系方式
欢迎业主、设计师、装修公司免费投稿照片
装修33天商务合作微信:king194316
松爷店铺掌柜微信:yejia1703
桃弥空间设计其他作品推荐
实用装修指南
装修33天 🏡 实用装修指南
你每次点赞和转朋友圈,都是对我们的支持