点上方蓝字可关注 微信号:装修33天
▲ 这是设计师自己的家,有英式乡村风格、工业风融合,进门后是客厅区域,地面采用人字形铺贴的地板
▲ 顶面的黑色轨道灯有些工业风味道,沙发没有靠墙放置,沙发背后的梁下设计了柜子,增加了客厅的储物能力
▲ 可以看到进门的鞋柜和沙发背后的柜子都用了蓝灰色
▲ 沙发背后的柜子设计分成两部分,吊柜是采用黑色的钢板,与轨道灯呼应,形成工业元素,地柜和鞋柜以及边上的百叶门柜一起组成综合收纳
▲ 从餐厨区望向客厅,餐厅的边柜设计考虑了嵌入式电器
▲ 开放式厨房用了黑白花砖铺地,白色地铁砖铺墙,简单干净
▲ 楼梯设计,缩小了鞋柜,让采光更好,最后一节楼梯增加的面积,让狭小的楼梯实用性提高
▲ 卧室都在楼上,主卧空间的采光很好
▲ 床头背景采用了木饰面做造型
▲ 和浴室之间开了一扇窗,让原本狭小的浴缸位置不会显得太压抑,通风也会更好
▲ 主卫的洗手台镜柜两侧安排了化妆补光照明,实用性很好
▲ 浴缸位置和主卧的关系
▲ 次卧是两个房间拼起来的,一个次卧加上一个书房,中间可以用折叠门变成两个房间,目前只有两夫妻居住,将来有孩子了可以独立成两个儿童房
▲ 阳光房外的山景很不错
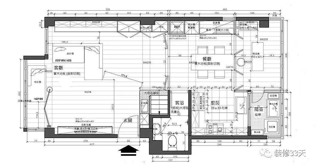
▲ 一楼平面布置图
▲ 二楼平面布置图
设计 | 元典設計(台湾)
欢迎业主、设计师、装修公司免费投稿照片
公众号商务合作微信:king194316