点上方蓝字可关注 微信号:装修33天
▲ 业主是一对可爱的新婚夫妻,想要创造简单、健康、开放、自然的以人为本的居家环境,北欧风格正好迎合了业主的需求,入户玄关处,一个小巧可爱的入墙式鞋柜,上下分体,底部与中间留空,简约实用,皮质拉手让柜体充满个性
▲ 客厅地面采用木质地板,人字拼贴,温润的质感给空间带来了一丝温暖,墙面以蓝灰色作为基调,搭配一些造型简洁颜色鲜艳的沙发和茶几,营造出清新活泼的氛围
▲ 为了让空间更显通透,打通书房与客厅的区域,用黑框玻璃移门作间隔,是原本客餐厅一体的空间,更加宽阔,采光也更充足
▲ 墙面用一面黑板画作装饰,加上LED灯串,增添空间温馨文艺范
▲ 客餐厅互通,客厅的沙发位置使得无处安置电视机柜,设计师将电视柜靠墙放置,利用可旋转支架解决电视方位问题
▲ 餐厅延续了客厅的人字拼贴木地面,靠窗的位置,赋予空间良好的采光,电视机旋转壁挂支架,正好也可以在用餐的同时看到电视
▲ 北欧风格的餐桌椅,一盏轻盈质感的白色吊灯,金属质感的餐具搭配玻璃瓶的插花,干净利落,不同颜色的运用多了几分层次感
▲ 餐厅望向厨房位置,相邻的设计,让两个区域之间有更好的互动
▲ 半封闭式的厨房,用细框黑色玻璃移门作为间隔,空间更加的开阔,灰蓝色的墙面搭配干净的小白砖,白色简洁的柜门,搭配黑色台面与钮扣拉手,带来清爽洁净的视觉感受
▲ 书房同样是木质地板,人字拼贴,延续了公共空间蓝灰色的墙面,树叶窗帘让空添自然感,一架钢琴,搭配气质装饰,一个既有书香,又有艺术气息的空间
▲ 书房背景采用墨绿色墙面,避免灰色的单调乏味,搭配简易的连体书架和木质的桌面,感觉轻松且愉悦,双区域的工作台,提高使用效率
▲ 主卧人字铺贴的木质地面,灰色调的乳胶漆墙面,简约实木大床,搭配木质床头柜,利用白色的小壁灯,让空间显得轻盈,淡淡的生活气息,带来静谧的睡眠环境
▲ 线条简单利落的木质家具,显露着自然的纹理,清新的床品,床头玻璃器皿中的尤加利,让空间舒心惬意
▲ 卫生间干湿分区,提高使用效率,干区黑白灰作基调,一盏亮黄壁灯,作局部提亮,深色的淋浴房地面,搭配白色方砖墙面,清爽又经典
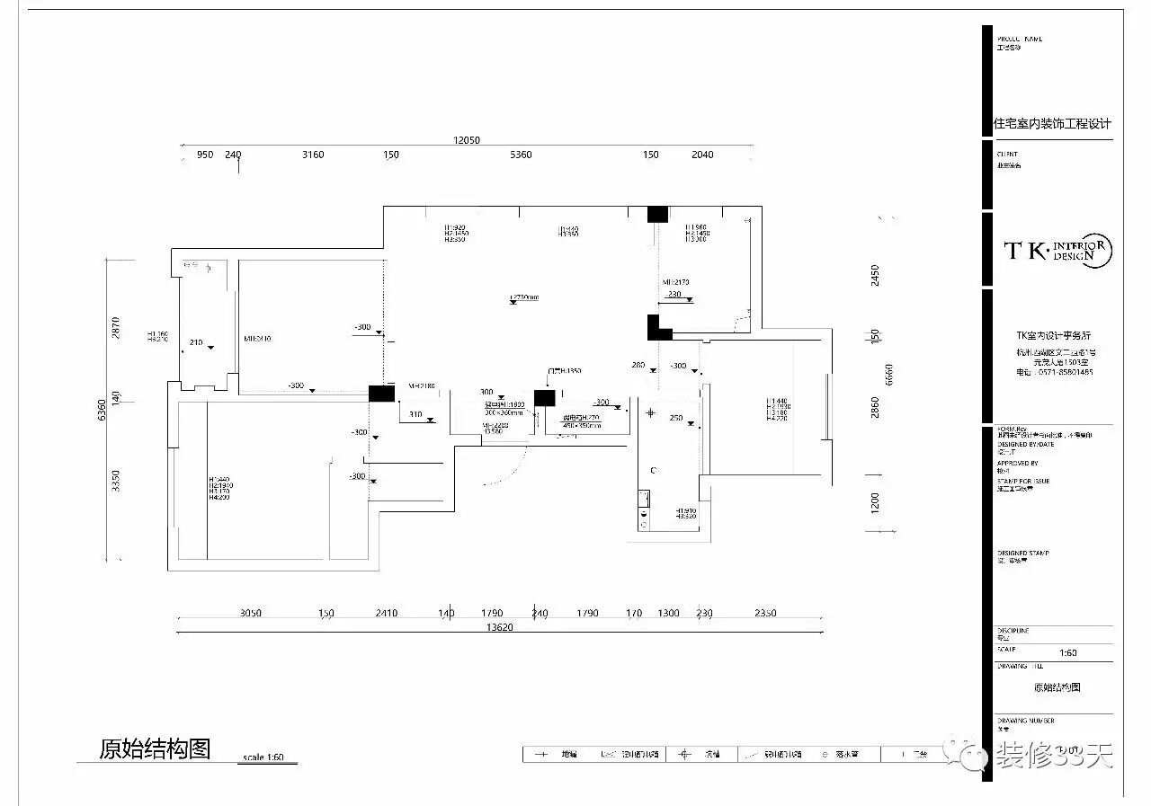
▲ 原始结构图
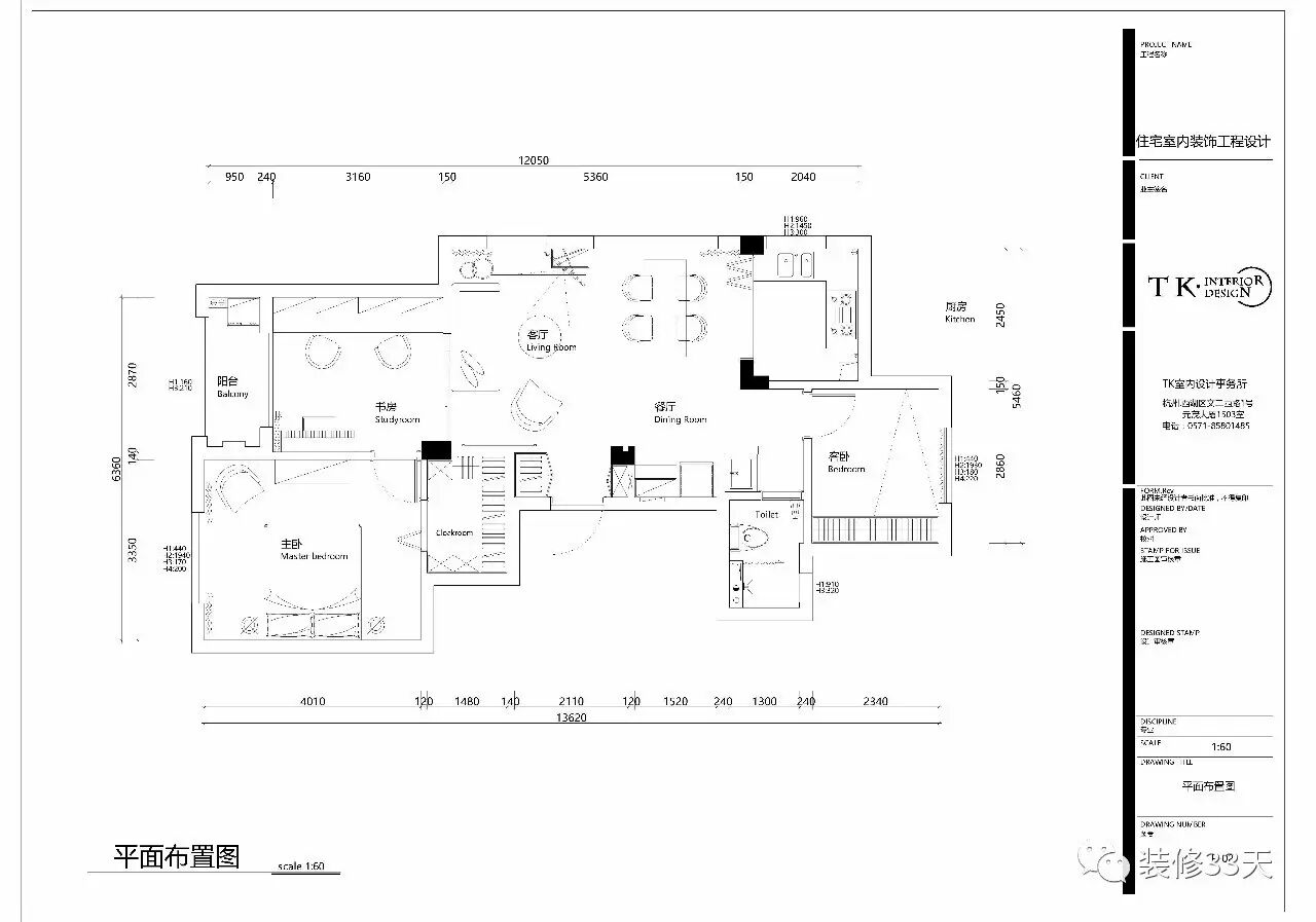
▲ 平面布置图
设计 | TK原创设计(杭州)
电话:15957143882
微信:tk_design
后台回复「TK原创设计」可以看更多作品
欢迎业主、设计师、装修公司免费投稿照片
公众号商务合作微信:king194316