点上方蓝字可关注 微信号:装修33天
▲ 建筑面积65平,LOFT结构,硬装4万,软装4万,不包含家电,入户地面铺贴小花砖,成品矮鞋柜和一个换鞋凳,墙面的层板架和衣帽钩,把一个北欧元素的轻松门厅呈现出来
▲ 另一边是开放式的厨房,白色橱柜,黑色拉手与铁件,一个简约的北欧式厨房,花砖地面与木质地板衔接,用黑色地垫过渡
▲ 厨房与客厅之间的过道,右面墙留白,左面墙做了黑板区域,冰箱区域,还有小家电收纳区域,使空间有松有紧,把握空间的节奏感,通透的楼梯也让空间看起来大了不少
▲ 过道走廊用不同尺寸与样式的装饰画布置,丰富墙面,让走廊不显单一
▲ 客厅地面通铺木质地板,铺一张黑白几何图案地毯,浅灰色的组合沙发,搭配懒人沙发,圆形的茶几与边几组,黑白搭配,黑白灰的基调,背景墙用装饰画与DIY麋鹿墙饰,空间尽显北欧格调
▲ 客厅挑高,不做吊顶是整个客厅的精髓所在,满足业主喜欢大客厅的感觉,电视背景由白色电视柜与层板架组合,中间装上电视机,边上一个白色梯形置物架与白色储藏柜,解决了公共区域的收纳问题
▲ 餐厅在落地窗边,吃晚餐的时候可以直接看外面的星光点点,浪漫的享受二人世界,餐桌桌板有折叠功能,与朋友小聚时同时也可容纳更多人
▲ 客厅看向门厅,整个房型结构很通透,过道的层高也弱化掉了,一个几何线性吊灯,结合层高效果非常惊艳,顶装筒灯,作辅助光源,沙发便是设置了一个植物角,装上吊灯,实现区域照明功能
▲ 一楼的次卧用黑框玻璃移门,让空间通透,加装上拉帘兼顾私密性,关上门看电影隔音效果又很好
▲ 次卧面积9平方米,因为层高的问题,用简洁的吊顶,用点光源代替主灯,综合了榻榻米、衣帽间、展示、化妆桌、客房、影音室的功能
▲ 钢架楼梯比普通的定制楼梯要更硬朗一点,因为层高不算特别高,省掉了扶手,整个空间线条感很强,楼梯下的空间也没有浪费,没有整个做楼梯柜是怕过道变窄,这样做通透也不会压缩过道空间,做了壁灯,补充夜间照明,让楼梯间也显得很温暖
▲ 主卧地面通铺木色地板,白色的墙,白色的顶面,扩大视觉空间的效果,整面储物墙增添空间的收纳区域,北欧风与原木色的搭配,加入灯光的效果,冷淡中不失温暖
▲ 业主平时有加班的习惯,所以在卧室安排了小型办公区域,楼上楼下两个房间互不干涉,整面的玻璃窗隔断,客厅保持紧密联系,同时对楼上的通风和采光也有很大的改善
▲ 卫生间位置在进门的右侧,所以地面延续了门厅的花砖铺设,墙面铺贴白色长方形墙砖,淋浴区做上挡水条与浴帘,放置水往外溢,浴帘的图案将卫生间带入到自然的氛围中
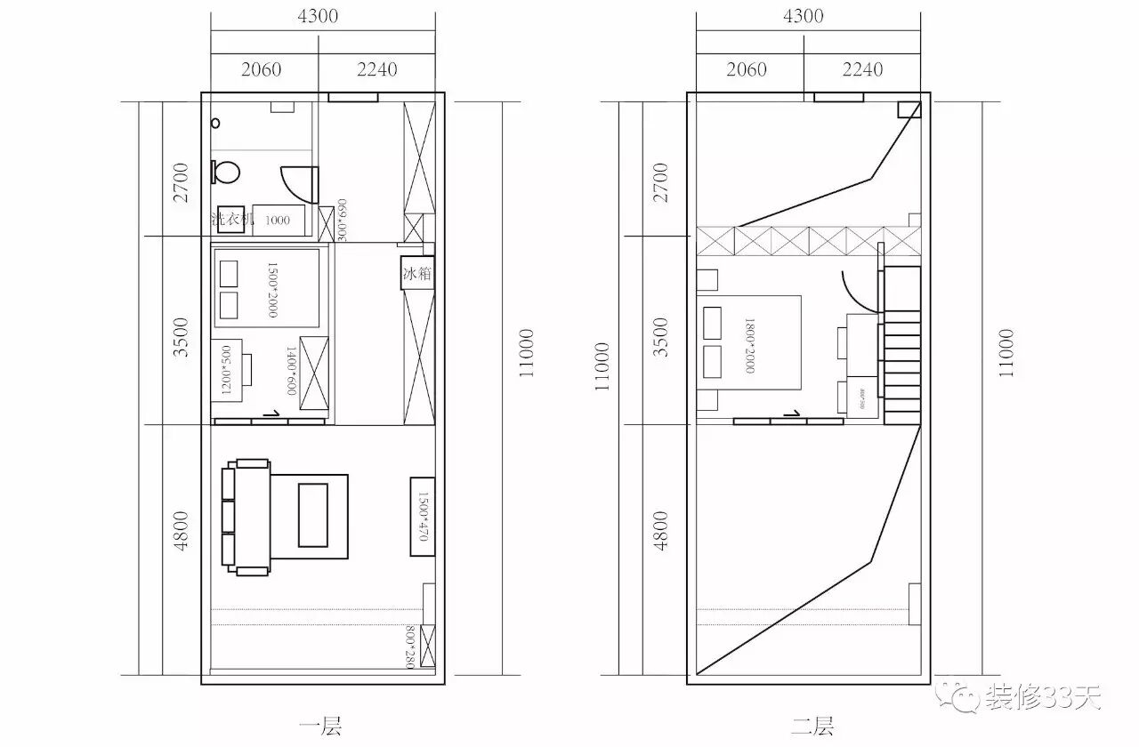
▲ 平面布置图
设计 | 清一舍设计工作室(杭州)
设计师微信:547186483
欢迎业主、设计师、装修公司免费投稿照片
公众号商务合作微信:king194316