点上方蓝字可关注 微信号:装修33天
▲ 建筑面积55平,使用面积40平,总造价20万(软硬装+家具家电),将原阳台地面下挖60厘米,形成挑高客厅,木作多功能柜体,满足生活中的各种所需
▲ 客厅正对原木制作的多功能区,也是入户的第一道风景线,右侧的木质阶梯作鞋柜与换鞋凳,同时也作踏步使用
▲ 在木质多功能区的顶部安装投影幕布,可以坐在沙发上观影,一层铺下面是储物柜,可以收纳大型玩具与衣物
▲ 黑色电壁炉与百叶帘后方的暖气,以满足三代人的供暖需要,折叠梯子通往露台,作为女主专属养花区域
▲ 小小的原木空间,满足微型的住宅的多种功能需求,可将顶面的层板根据需求调整高度,随时切换书桌,双层床铺的功能
▲ 多功能的原木空间还是一个儿童乐园,半遮挡的设计,大小不同的圆形洞口让空间活泼并充满童趣
▲ 客厅到餐厅有40厘米的错层设计,并在台阶踏步侧墙安装扶手,保证家中老小在上下台阶时的安全性
▲ 餐厅以灰色的地面,利用餐厅背景立面作了储物设计,增加空间收纳功能,另一面的绿色黑板漆,解放孩子爱涂鸦的天性
▲ 厨房延续灰色地面,不锈钢的超大操作台面,方便料理,并在过道设计可收纳的折叠隔板,让料理台面更加宽敞,设计师并巧妙利用空间,容纳了大型厨电
▲ 收起折叠隔板,拉开隔断帘,即是次卧榻榻米空间,互通的设计让空间通透明亮
▲ 主卧木色地面延伸至收纳柜体与榻榻米床架,白色乳胶漆墙面与原木色的家具,空间给人舒适的温暖感
▲ 卫生间做到了洗浴,洗漱,马桶间3分离,小空间还做到了干湿分区的设计,提高使用效率
▲ 为满足业主想要浴缸的需求,由于空间局限,不能直接安装浴缸,在地面下挖然后砌筑自砌一个70厘米深的浴池,可以方便洗浴泡澡
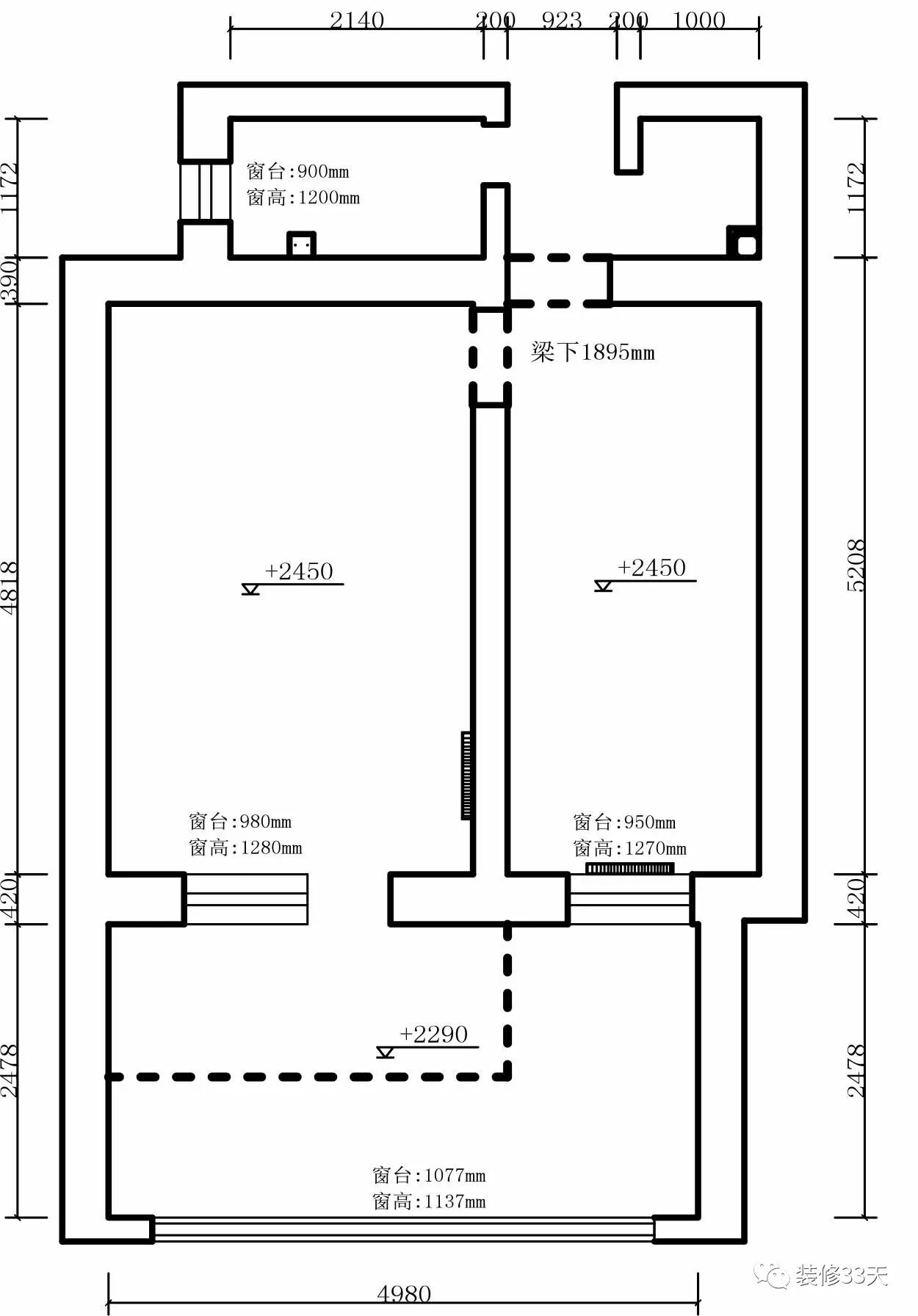
▲ 原始结构图
▲ 平面布置图
设计 | 罗秀达(北京)
微信:149671763
欢迎业主、设计师、装修公司免费投稿照片
装修33天商务合作微信:king194316