点上方蓝字可关注 微信号:装修33天
▲ 建筑面积120平,总造价30万,设计师为家中的三代同堂,打造出赋有品质,简约中带有古典欧式元素的家居格调
▲ 客厅大气的仿石纹地面搭配柔和的墙面,利用白色线条勾勒出欧式的典雅端庄,并采用横条装饰画与挂钟点缀
▲ 空间中布置简约新古典风的家具,精致的做工,沉稳的色调,呈现大气低奢的居家品质
▲ 将阳台纳入客厅的空间中,让公共空间更加敞亮,灰蓝色的窗帘呼应精致台灯的色调,营造出雅致风韵
▲ 儿童房立面铺贴粉色系星星壁纸,床背景墙设计出壁龛,装一盏射灯,方便置物装饰
▲ 在儿童房的侧墙木作阅读书桌,上方设计置物吊柜,玻璃门片隔离灰尘的同时又不显柜体厚重
▲ 次卧地面通铺木质地板,柔和的乳胶漆墙面,搭配蓝色大床与敞亮,让过于漂浮的空间沉稳下来
▲ 木作顶天立地的储物大衣柜,连体设计出阅读书桌,兼具床头柜的功能,猩猩床品让空间充满趣味性
▲ 主卧地面延续木质地板铺贴,立面采用柔和色调的壁纸铺贴,典雅的软包大床与对称的精致壁灯,打造舒适唯美的就寝空间
▲ 卫生间地面与墙面通铺浅色瓷砖,采用深色仿石纹砖铺贴出腰线效果,玻璃移门淋浴房尽量让空间做到干湿分区
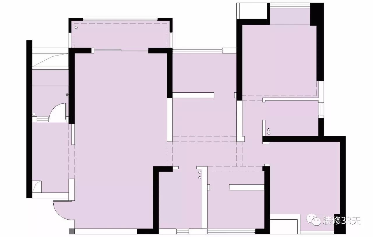
▲ 原始平面图
▲ 平面布置图
设计 | 喜屋设计(成都)
微信:jingjingdiaodiao 电话:15680795559
后台回复「喜屋」可以看更多作品
欢迎业主、设计师、装修公司免费投稿照片
装修33天商务合作微信:king194316