点上方蓝字可关注 微信号:装修33天
▲ 室内使用面积66平左右,两人居住,考虑朋友拜访和将来有孩子,为了空间灵活性,把空间设计成回字形,用移门来隔断,可轻松调节开放和隐私
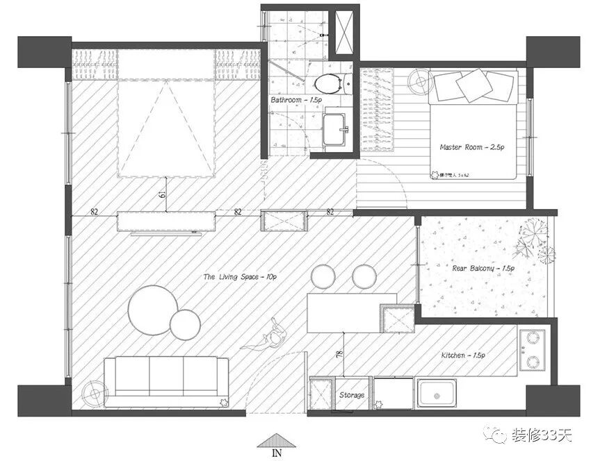
▲ 平面布置图
▲ 主色调采用蓝灰色,可调节方向的轨道灯来作照明,能满足不同需求
▲ 灰色调的猫抓布沙发,不但可以防水,也不怕宠物,茶几是用可爱小象造型的小茶几,对于小空间来说,方便移动很重要
▲ 从客厅望向餐厨方向,柜子的里面采用了大面积的欧松板,别有韵味,进门之后有一个小鞋柜,对于鞋子不多的业主来说,小鞋柜也够用
▲ 餐桌是采用岛台形式,可以容纳四人用餐
▲ 公共领域和卧室之间采用细框移门隔断,打开的时候让空间视觉更宽敞,需要独立空间的时候可以随时关上
▲ 主卧床头在梁体下方设计了柜子,两侧储物柜,中间用隔板也可以收纳
▲ 最主要的是这床也可以折叠式的,可以翻起来隐藏在柜子内部
▲ 一张床同时解决了压梁问题、柜子储物问题以及空间灵活可变问题
▲ 和客厅电视背景是两侧移门连接,形成回字形空间结构
▲ 回字形设计让小空间显大,不会过于憋屈,当然也牺牲了一定的空间隐私和独立
▲ 移门加上帘子基本能解决隐私问题
▲ 保留的另一个卧室,墙面采用不同颜色的乳胶漆刷出立体感
设计 | 合砌設計(台湾)
欢迎业主、设计师、装修公司免费投稿照片
装修33天商务合作微信:king194316
关键词推荐(可回复可点击)