点上方蓝字可关注 微信号:装修33天
▲ 建筑面积160平,客厅采用深浅色调拼出造型,极简吊顶设计音响设备,L型皮质沙发,几何形差机组,木作大面积系统柜作背景墙
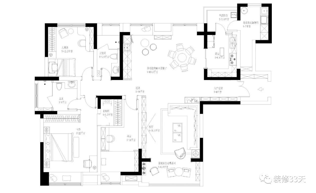
▲ 平面布置图
▲ 沙发背景墙,金灰添彩,宛若素白新纸上撇出两笔,豪放却不张扬,彰显低调的雅致感
▲ 将阳台纳入公领域,扩大空间同时增加室内光线,白色瓷砖面搭配白纱,金色镂空铁件椅与轻巧小茶几,简约又时尚
▲ 利用阳台两边木作两组储物柜,增添空间收纳,白色纱帘搭配靛色窗帘,加入绿植点缀,立马清新怡人
▲ 餐厅玻璃大圆桌,搭配剔透水晶灯,精致餐具与鲜切花,营造唯美就餐环境
▲ 开放式西厨吧台与餐厅相邻,白色橱柜搭配海洋木纹墙砖,充满复古质感
▲ 厨房白色防石纹瓷砖铺贴出明亮质感空间,定制款白色橱柜搭配灰色台面,吊柜不做满局部采用隔板形式代替,让空间不显压抑
▲ 木作榻榻米与储物柜体,布置藤麻制品,打造出休闲茶室,并兼做书房与临时客卧,功能多样
▲ 儿童房地面通铺木质地板,蓝色乳胶漆墙面搭配蓝灰软包,防止小朋友磕碰,同时增添立面层次
▲ 卧室一角,童趣公仔,小狗凳,鲨鱼懒人椅,让孩子的空间充满童趣与天真
▲ 主卧延续原木色地板,极简吊顶无主灯设计,金黄银杏叶墙纸铺贴床头背景,让立面充满灵动性
▲ 卡其色大床柔软舒适搭配开放式收纳床头柜,晶莹的EICHHOLTZ床头吊灯呼应餐厅主灯,如绸缎般流线优雅
▲ 白色木作垭口与软垫包裹出飘窗,为空间增添阳光休闲一隅
▲ 卫生间地面与墙面通铺白色防石纹砖,瞬间让空间明朗许多,百叶帘可随意调节室内光线,并确保空间私密性,玻璃移门让空间做到干湿分区
▲ 设计师团队合照
设计 | 尚舍设计
电话:4000112107
欢迎业主、设计师、装修公司免费投稿照片
装修33天商务合作微信:king194316
关键词推荐(可回复可点击)
装修33天 🏡 实用装修指南
喜欢我们的文章就随手转发到您朋友圈吧