点上方蓝字可关注 微信号:装修33天
▲ 建筑面积80平,造价14万(硬装+软装,不含家电),入户木作鞋柜与收纳吊柜,中空立面采用玻璃砖通透光线,格子换鞋凳沿至半高护墙板,玄关功能多样化
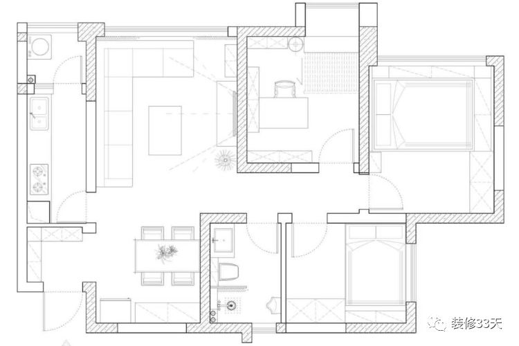
▲ 平面布置图
▲ 客厅地面通铺灰色水泥砖,绿色电视背景墙,简简单单的物件尽显小资格调
▲ L型布艺沙发搭配铁件实木茶几,灰色背景墙不到顶设计,并用绿色木饰条收边,在墙体中间位置嵌入玻璃砖,让整个安静的空间多了一丝灵动,趣味横生
▲ 客厅望向餐厅方向,整个空间抛弃传统吊顶形式,局部加设隔板,增加空间层次与修饰
▲ 餐厅与客厅互通,水泥灰地面搭配高级灰乳胶漆墙面,木质结合金属的餐桌,搭配复古工业风吊灯,粗糙与细致的结合,相得益彰
▲ 木质彩色复古餐边柜,呼应整体风格,不仅提供收纳功能,还为整个空间增加了亮点
▲ 自然的餐桌纹理,精致复古的布置,灰色墙面映衬出向日葵的朝气,暖意的灯光营造温馨的就餐环境
▲ 厨房地面采用地板砖工字铺贴,立面铺贴浅色瓷砖,结合玻璃砖的通透,增添空间趣味性,绿色定制橱柜搭配暖黄色台面,吊柜下方安装光源,让操作更加便利
▲ 书房地面通铺艺术地板,灰色乳胶漆墙面安装工业风铁件层板架,满足展示与置物功能,木质结合铁件书桌椅,质感丰富,与整体风格呼应一致
▲ 灵活可变的飘窗,即是阅读一角,拉开木质框架,立马变成临时床架,功能丰富多样
▲ 主卧木作柜体,一气呵成,变出强大的储物功能,绿色柜门搭配暖色窗帘,让整个空间简洁清新
▲ 卫生间灰色地砖搭配复古艺术墙砖,绿色浴室柜与玻璃砖隔断,营造出自然清新的朦胧美,让实用与美感兼备
设计 | 秋刀设计工作室(成都)
微信:13540008789
欢迎业主、设计师、装修公司免费投稿照片
装修33天商务合作微信:king194316
关键词推荐(可回复可点击)
装修33天 🏡 实用装修指南
喜欢我们的文章就随手转发到您朋友圈吧