实用装修指南
▲ 建筑面积110平,是对二手房的改造,结构不作改动,造价24万(软硬装+家具家电 ),入户充分利用玄关壁面,木作分体鞋柜与换鞋凳功能
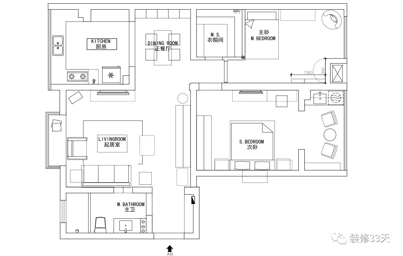
▲ 平面布置图
▲ 从入户至过道走廊,靠墙一整排到顶储物柜,大大满足空间储物需求,白色柜门左右两边设计黑板墙与换鞋区,点缀金色壁灯,简约清新
▲ 客厅地面通铺木质地板,简约吊顶装一盏美式吊灯,飘窗的设计给空间增添休闲一角,采光良好
▲ 美式家具休闲复古,柔和粉色墙面勾勒白色线条作背景,点缀抽象装饰画,整体空间温馨不失气质
▲ 美式风格温馨又实用,仿古相框与金属小台灯,呈现文化艺术气息
▲ 电视背景墙延续简约美式造型,纯白电视柜与侧墙储物柜风格统一
▲ 餐厅延续木地板,粉墙搭配收纳柜作背景,一套质感浓厚的餐桌椅搭配精致吊灯,享受美食与艺术生活
▲ 餐厅望向客厅,视线宽阔,与厨房通过白色格子玻璃移门作隔断,通透明亮,解决原本采光不足的问题
▲ 厨房整体通铺仿古砖,搭配定制木纹门片橱柜,左侧加高柜体方便收纳各式厨房小家电,让空间更加简洁宽敞
▲ 儿童房整体以浅粉色为基调,白色上下铺美观又实用
▲ 在儿童房靠窗位置,为孩子打造一个乐园,符合儿童尺寸的家具与布置,充满温馨与童趣
▲ 简洁实用的卧室空间,柔和墙面搭配木色地板,多斗柜作电视柜使用,一组白色多门大衣柜满足空间收纳
▲ 简约美式大床与床头柜,背景墙点缀两幅装饰画,蓝色床品呼应窗帘色调,就寝环境清新舒适
▲ 卫生间以白色为主色调,搭配黑色镜柜,整体简洁干净
设计 | 7kk设计(上海)
微信:15221706435
后台回复「7kk」可以看更多作品
欢迎业主、设计师、装修公司免费投稿照片
装修33天商务合作微信:king194316
实用装修指南
装修33天 🏡 实用装修指南
喜欢我们的文章就随手转发到您朋友圈吧