实用装修指南
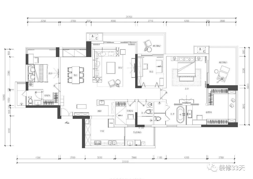
▲ 建筑面积170平,总造价80万(软硬装+家具家电),业主是一名90后海归,年纪轻轻便已收获了许多财富,追求简单纯粹的生活,入户中部留空储物柜作鞋柜使用
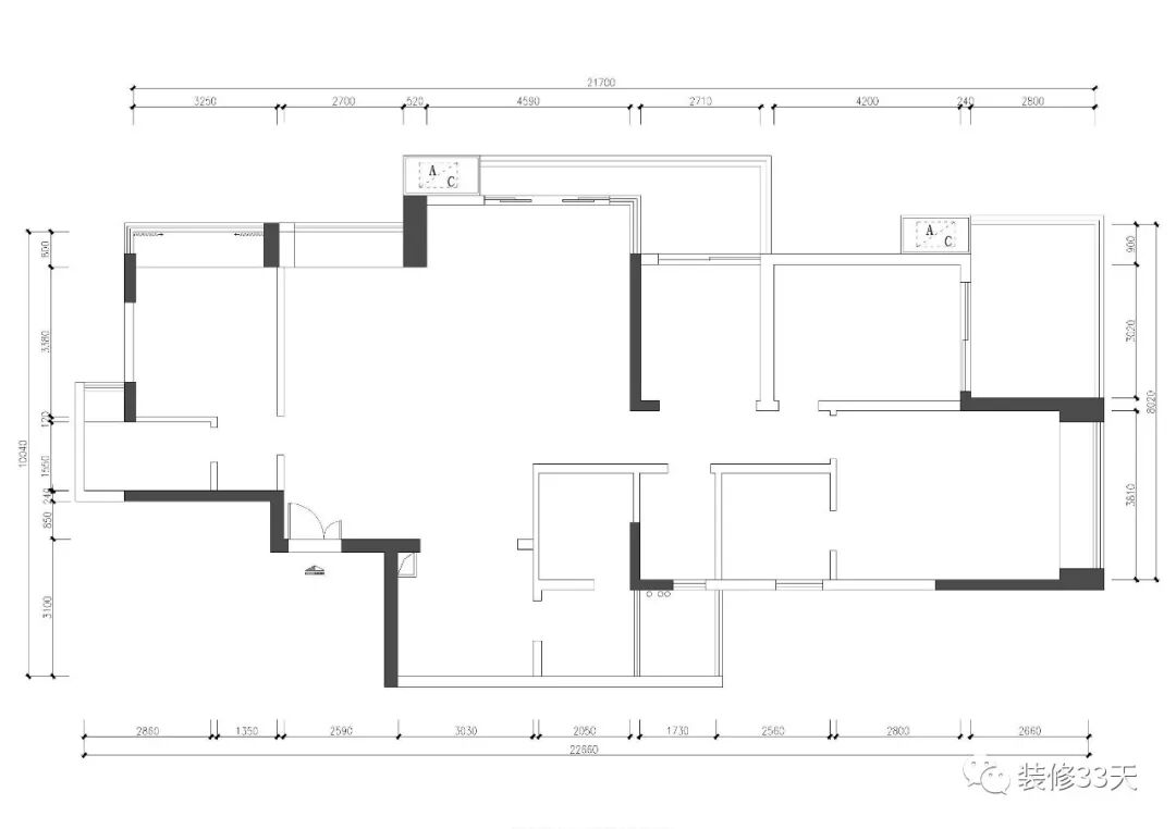
▲ 原始平面图
▲ 平面布置图
▲ 原户型为四房两厅,每个空间区域都不大,功能缺失,设计师将客餐厅与厨房空间完全敞开,增大各功能空间
▲ 客厅以黑白灰为基调,穿插青灰色点缀空间,无比清新,墙面以水泥灰为基底,配合几何形灯具,茶几,配饰,完成空间大构架,转角落地窗让空间豁然开朗,增强视觉冲击力
▲ 灰色电视背景墙赋予立面质感,架空设计极简造型电视柜,延伸水泥色地坪,并让空间不留打扫死角
▲ 客厅与餐厅互通设计,让两个区域间的家人能有更好的互动,地面与天花通过白与灰进行了明显的色块区分,层次感十分强
▲ 充满艺术氛围的餐厅,冷冷白灰色调子下,注入青色调,使空间显得十分轻盈,呼应几何主题的挂画,长条形灯具屹立在半空,营造出别样精致氛围
▲ 西厨区域与客厅相邻,在洁白色的空间里,湖蓝色的餐桌布点亮了整片空间,这片完全敞开的西厨区给生活添加了很多乐趣
▲ 书房以白灰为基调,地毯和装饰画斑驳陆离的颜色渲染而开,席卷整个空间
▲ 书桌旁一组开放式书柜陈列业主收藏的相机,凸显业主爱好与品位
▲ 书房背景墙布满抽象画作,增添色彩,在工作之余,拿起画笔勾勒一组素描,是释放内心压力的绝好方式
▲ 客卧延续灰白色调,简洁舒适,内凹墙面背景装饰两幅简框画,蓝色几何造型边柜,轻巧写字台,休闲飘窗,给空间增添出更多机能
▲ 主卧简约大气,点缀一点色彩与灯光,让空间赋有温度,几何色块的挂画,配合简单的几何柜体,自然成景,无需修饰
▲ 设计简单要比复杂更加考验设计师,去掉冗杂的华丽,简单的东西天生就能表达最真实的一面
▲ 主卫分两个区域,干区与衣帽间连接,浴缸区域独立,整体不仅贯穿了简洁的主题,而且十分得体
设计 | 漾设计(深圳)
微信:13922880680
后台回复「漾设计」可以看更多作品
欢迎业主、设计师、装修公司免费投稿照片
装修33天商务合作微信:king194316
实用装修指南
装修33天 🏡 实用装修指南
喜欢我们的文章就随手转发到您朋友圈吧