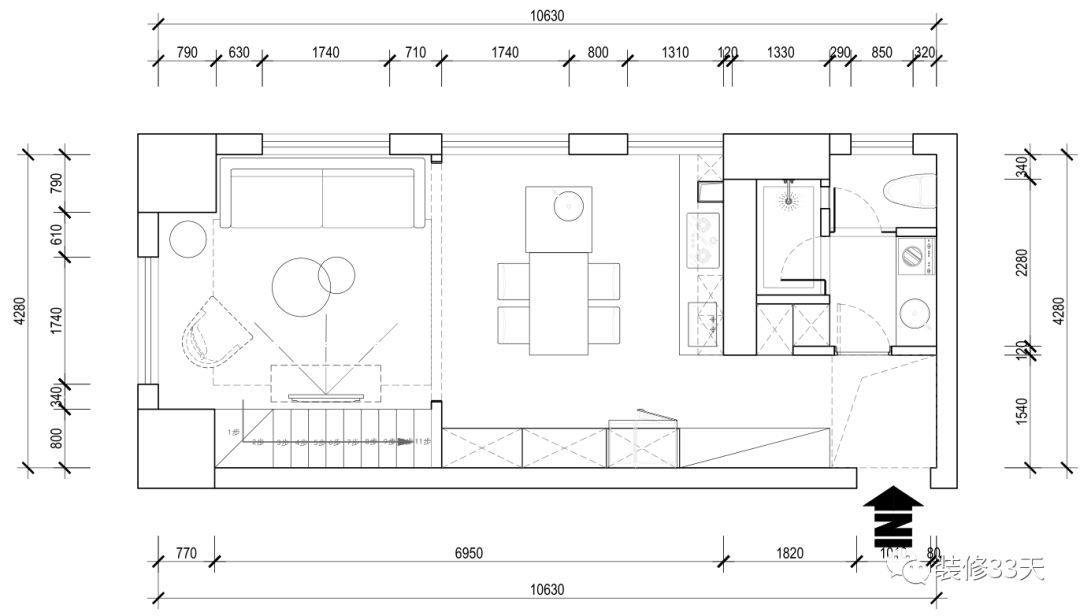
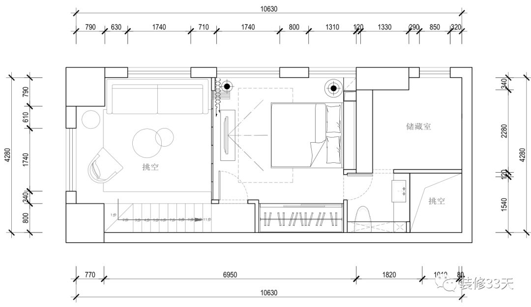
120平挑高户型loft公寓 黑白木清新北欧物语

费崎峰 装修33天