点上方蓝字可关注 微信号:装修33天
▲ 建筑面积90平,造价33万(软硬装+家具家电),入户通体白色储物柜与挂钩墙镜设计,兼具美观与实用
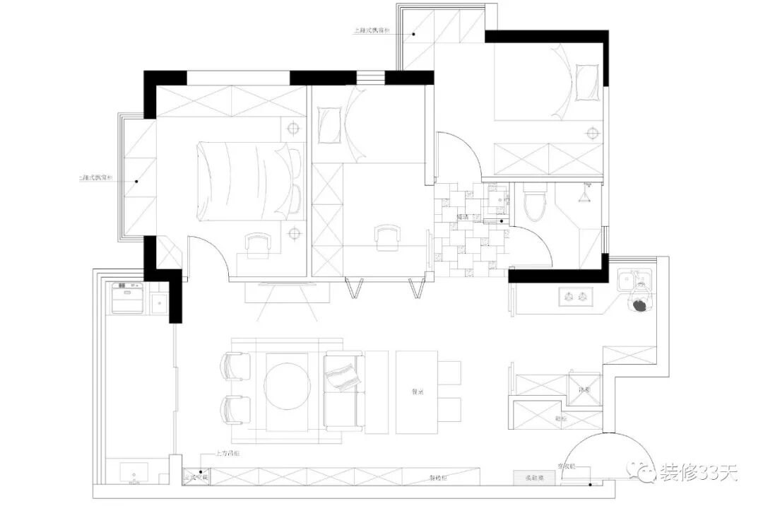
▲ 平面布置图
▲ 餐厅设计在入户第一眼,原木餐桌椅流露自然肌理,错落系统柜连接客厅整墙书柜,形成一体化收纳机能
▲ 客餐厅全开放式设计,扩大公领域视野,增强空间包容性,同时还保证独立功能需求
▲ 公领域空间与儿童房之间开一扇窗,折叠白色百叶让空随时切换开放与独立模式
▲ 跳脱传统客厅的布置模式,将沙发换向摆放,与餐厅长凳相依,整体温和清亮的色调让空间看起来更显简洁明快
▲ 浅色系乳胶漆墙面,整墙白色书柜作客厅背景,搭配玻璃门片,呈现轻盈,现代感
▲ 实木与真皮材料的运用增添居所质感,鹅黄色布艺沙发凸显空间活泼时尚感,白色拉槽电视背景墙包含主卧隐形门片
▲ 客厅望向餐厨视角,整体空间动线流畅
▲ 厨房地面采用六边形花砖拼贴,墙面以白色地铁瓷砖工字铺贴,深浅搭配橱柜简洁实用
▲ 客卫干湿分区,在过道自砌小花砖洗手台,别具一格
▲ 儿童房以柔和的淡紫色为基调,搭配趣味性家具与灯饰,充分表现孩子个性的生活方式
▲ 老人房白色系硬装搭配木色大床,床背景点缀两幅装饰画,给空间增添一抹自然色彩
▲ 主卧地面通铺灰色系木质地板,侧面嵌入式置顶大衣柜,床尾采光飘窗兼具抽屉收纳
▲ 卫生间花砖地面搭配白色暗花瓷砖,智能马桶享受智能生活
设计 | 标点设计(深圳)
微信:15112516480 微信公众号:SZ-BDSJ
后台回复「标点」可以看更多作品
欢迎业主、设计师、装修公司免费投稿照片
装修33天商务合作微信:king194316
标点设计其他作品推荐,点击下图查看110平现代美式三居室 设计感嵌于细节
实用装修指南
装修33天 🏡 实用装修指南
喜欢我们的文章就随手转发到您朋友圈吧