点上方蓝字可关注 微信号:装修33天
▲ 建筑面积280平,造价103万(软硬装+家具家电),入户结合转角中西厨设计,呈现完美明亮的料理空间
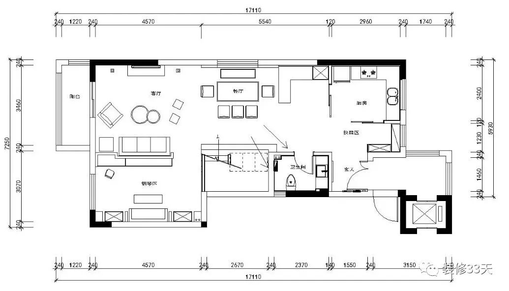
▲ 一楼平面图
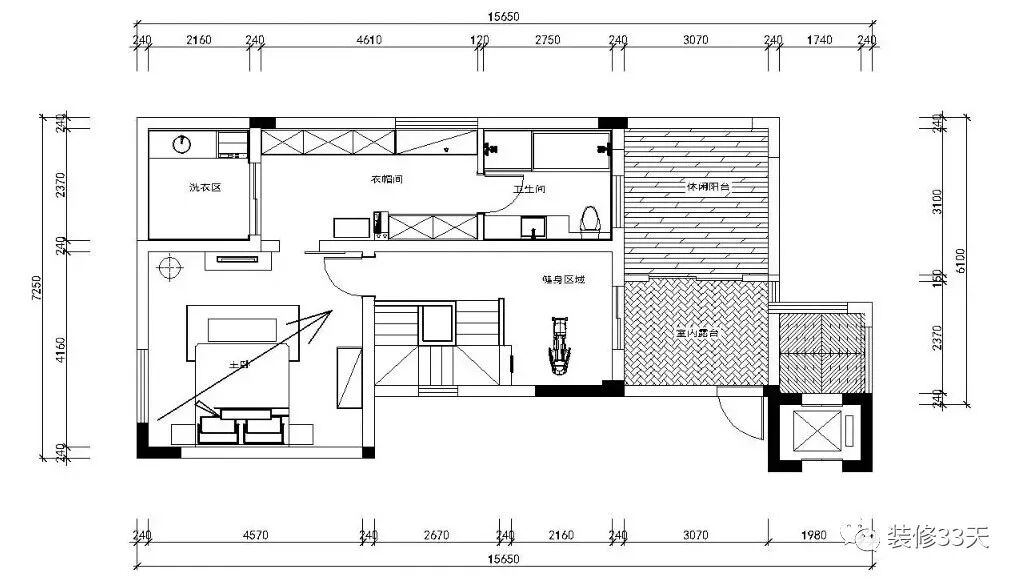
▲ 二楼平面图
▲ 三楼平面图
▲ 从入户到料理区以及餐厅,各区域相互贯通又合理区分功能,中厨区采用极简窄边框移门,可随意切换空间模式
▲ 利用过道空间设计用餐区,让厨房与客厅有序过渡,整体以白色为基调,点缀黑色与木色,营造简约温馨的就餐氛围
▲ 挑高结构的客厅作为户型亮点,地面采用木质地板人字铺贴,整体空间通过简洁明了的线条,黑白分明的色块,提升空间品质感
▲ 原木皮质沙发搭配实木茶几,呼应沙发的原木背景隔断,融合空间色调的地毯与动物图案靠枕,给品质空间增添一丝生趣
▲ 与客厅相邻设计出休闲练琴房,增添出实用又雅致的艺术空间
▲ 电视背景墙呼应空间户型,作挑高留白设计,搭配墨色石材台面延伸至半墙,与铁件吊灯呼应,增添空间层次感
▲ 从客厅望向各区域空间视角,二层清玻护栏与隔墙,让空间更为通透明亮
▲ 过道木饰面隐藏客卫门片,利用楼梯底部空间设计地台,成为儿童娱乐区域
▲ 客卫地面花砖搭配墙面白砖铺贴,不置顶设计与水泥色防水涂料,木色柜门与金色镜框,呈现简约清爽格调
▲ 从二层视角俯视公领域空间,亮黄色窗帘提亮空间
▲ 二层设计开放式书房,展示收纳背景柜,复古绿摇椅,让书房兼具休闲阅读功能
▲ 儿童房以灰粉色为基调,搭配木色地板与暖色吊灯,空间布置生趣可爱
▲ 次卧一,木质地板搭配卡其色墙面,黑色家具与羽毛吊灯,营造沉稳又柔和的就寝环境
▲ 次卧二,整体空间与次卧一呼应,利用房间格局,增添休闲一隅
▲ 通往三楼楼梯,留白墙面装饰大幅简框画,木质吊顶装一盏金铜色铁件吊灯,复古质感与时尚美观并存
▲ 主卧空间宽敞,木地板呼应木质吊顶与百叶帘,双窗洞设计让空间采光充足,整体自然舒适
▲ 主卫整体通铺统一的地砖与墙砖,搭配木色柜门洗手台,双台盆设计提高使用效率,空间中兼具淋浴房与浴缸功能,满足不同的洗浴需求
设计 | 邦标设计(江苏)
微信:18652888202
后台回复「邦标」可以看更多作品
欢迎业主、设计师、装修公司免费投稿照片
装修33天商务合作微信:king194316
邦标设计其他作品推荐,点击下图查看110平现代简约混搭 3扇隐形门统一立面
实用装修指南
装修33天 🏡 实用装修指南
喜欢我们的文章就随手转发到您朋友圈吧