点上方蓝字可关注 微信号:装修33天
▲ 使用面积38平,造价15万(二手房全案价),入户北欧格调三色六边砖铺地,大面穿衣镜延伸空间视觉
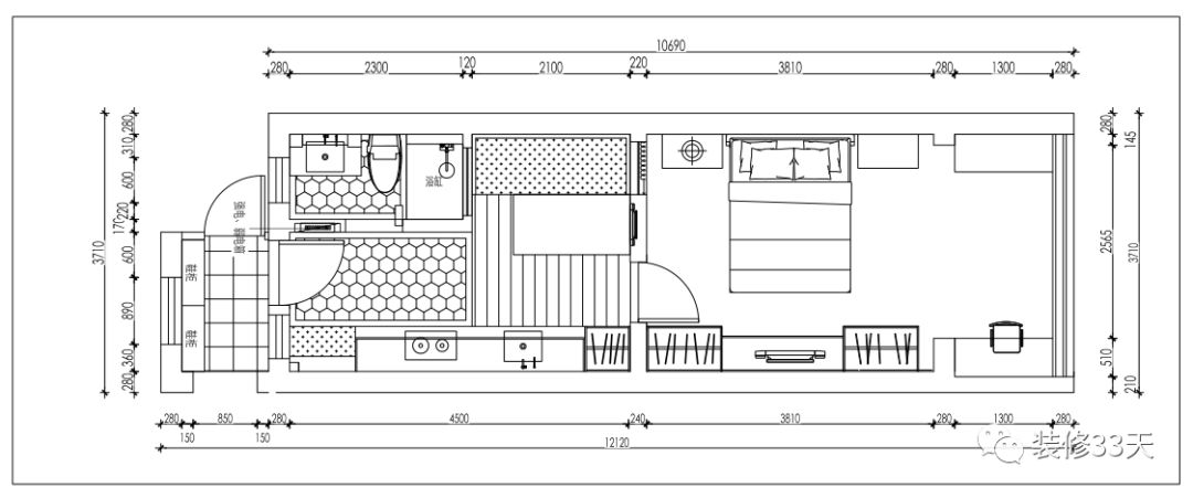
▲ 平面布置图
▲ 房子虽小,但同样功能俱全,设计出玄关换鞋区
▲ 从入户望向屋内视角
▲ 厨房操作区,定制橱柜加高台面至920mm,方便收纳洗碗机与微波炉
▲ 将烟机烟管隐藏在橱柜中,整体看起来更整洁,加高地柜留出洗衣机位置
▲ 清新范多功能餐厅,侧墙安装电视机与置物层板,兼具客厅功能
▲ 灰白色调搭配原木餐桌,宜家款沙发床,打开就是临时客卧
▲ 墙面的玻璃隔断,延伸视线,让空间不显压抑
▲ 卧室整体以素雅柔和色调为主,卡其色高背床制造浪漫舒眠环境
▲ 床边小景同样赋有高颜值
▲ 床尾对称两组宜家衣柜,中间加入多斗柜,形成美观兼具储物的电视背景
▲ 800mm宽的床头柜与电视柜呼应,空间格调统一
▲ 卧室阳台同样不浪费,定制电壁炉,分体式收纳柜,电动透光窗帘,形成休闲一角
▲ 阳台另一头,放上一张书桌,将立面利用成展示收纳墙,趣味十足
▲ 3.5平的卫生间通铺仿大理石瓷砖,搭配防潮石膏板吊顶,架空台盆柜延伸地面空间
▲ 功能齐全的洗漱空间当然少不了浴缸,三个壁龛用来放置洗漱用品,整洁不凌乱
设计 | Tina_wang独立设计师(上海)
微信:Tina_wang_design
欢迎业主、设计师、装修公司免费投稿照片
装修33天商务合作微信:king194316
实用装修指南
装修33天 🏡 实用装修指南
喜欢我们的文章就随手转发到您朋友圈吧