点上方蓝字可关注 微信号:装修33天
▲ 建筑面积100平,入户玄关,简单实用,穿衣镜,挂衣钩,鞋柜与餐边柜为整体定制
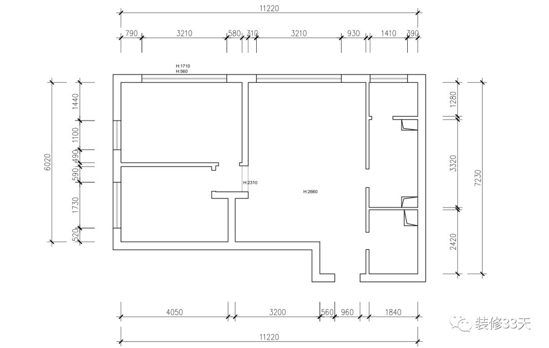
▲ 原始结构图
▲ 平面布置图
▲ 餐厅蓝灰色入墙收纳柜与鞋柜相连,形成靠墙料理台面,整体空间实用且精致
▲ 入户正对沙发,增加一个玻璃隔断,缓冲视觉又不影响采光
▲ 客厅地面通铺咖色地板,顶面天花加设精致石膏线装饰,造型吊灯,个性十足
▲ 整体空间以暖色系为主,局部点缀跳色软装
▲ 咖色皮质沙发,色泽温润,搭配旧木板隔断背景,形成温馨细腻的质感
▲ 木元素家具,搭配咖色与米色软装,大面积景观窗,让阳光与景色映入室内
▲ 电视背景墙采用对称框线作造型,大气又不过于繁琐
▲ 将客厅与厨房的墙打通,使得空间更加通透
▲ 沙发后面多出墙体的空间设计吧台,增加储物以及兼具休闲办公机能
▲ 厨房地面通铺耐脏的水泥砖,白色框型橱柜搭配深蓝色墙砖和客厅冷暖呼应
▲ 儿童房木地板搭配动物壁纸,靠窗榻榻米床架,一个充满童趣的空间
▲ 主卧采光极好,简单却很美观,左侧靠窗设计写字台,由于宝宝还小暂时放置婴儿床
设计 | 六和设计 邓凯(北京)
微信:784791473
后台回复「六和」可以看更多作品
媒体转载请注明出处并保留以上所有联系方式
欢迎业主、设计师、装修公司免费投稿照片
装修33天商务合作微信:king194316
松爷店铺掌柜微信:yejia1701
六和设计其他作品推荐,点击下图查看50平北欧混搭原木风 温暖舒适小户型
实用装修指南
装修33天 🏡 实用装修指南
喜欢我们的文章就随手转发到您朋友圈吧