点上方蓝字可关注 微信号:装修33天
▲ 使用面积135平,造价35万(软硬装+家具家电),公领域空间以现代灰与复古绿撞色搭配,使整个空间融合的恰到好处
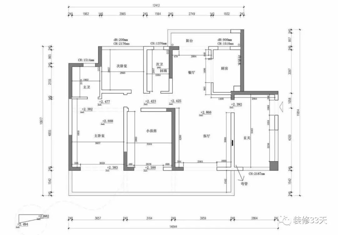
▲ 原始平面图
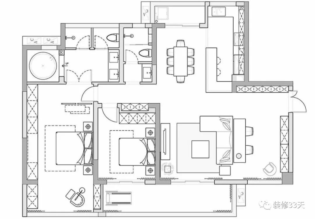
▲ 平面布置图
▲ 客厅鱼骨拼图案地板搭配灰色布艺沙发,原木家具点缀北欧元素软装,一盆望鹤兰让室内充满生机
▲ 餐厅延续鱼骨拼图案,九宫格造型吊顶与85厘米高的白色木质墙裙相迎合
▲ 墨绿乳胶漆背景点缀简框画,搭配木质餐桌椅与工业风吊灯,带来一丝怀旧情怀
▲ 日常的点滴生活,体现业主对生活的精致度
▲ 开放式设计增加餐厅与厨房的开阔度,L型吧台给橱房料理台作一个补充
▲ 次卧同时也是未来的儿童房,业主要求不能有任何性别倾向的色调,设计师以留白的方式打造清爽舒眠空间
▲ 黑色铁艺床与铁艺吊灯呼应,床边多斗柜布置小景并增添空间收纳
▲ 将一个鸡肋的次卧改成主卧卫生间,以白框玻璃开门作空间分割
▲ 主卧延续鱼骨拼图案地面,灰白色调搭配大面积木作储物柜,没有衣帽间也能拥有充足的收纳空间
▲ 重新组合后的主卫,扩大使用空间,提升空间舒适度与整体居家气质
▲ 卫生间整体铺贴仿大理石瓷砖,真正分离式的格局,打造高品质高颜值空间
▲ 原本狭小的卫生间现在只作浴缸区使用,奢侈的享受
设计 | 逅筑设计(成都)
微信:15828673961
后台回复「逅筑」可以看更多作品
媒体转载请注明装修33天并保留设计师联系方式
欢迎业主、设计师、装修公司免费投稿照片
装修33天商务合作微信:king194316
松爷店铺掌柜微信:yejia1701
逅筑设计其他作品推荐,点击下图查看100平灰木简约调 玻璃隔墙借卧室采光
实用装修指南
装修33天 🏡 实用装修指南
喜欢我们的文章就随手转发到您朋友圈吧