点上方蓝字可关注 微信号:装修33天
▲ 建筑面积110平,总造价25万,入户一组嵌入式置顶鞋柜,解决门厅储物需求
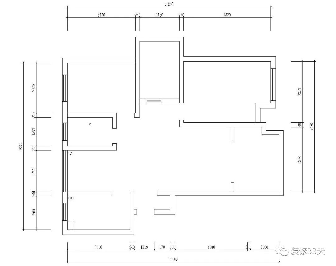
▲ 原始结构图
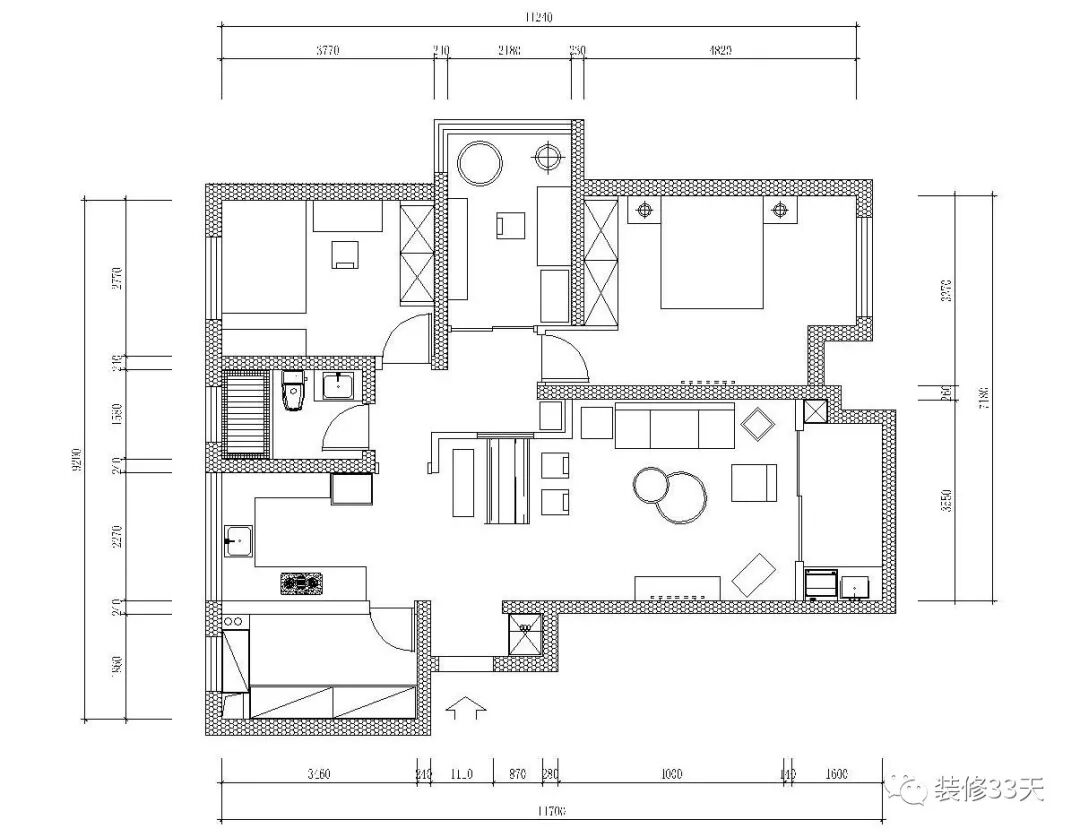
▲ 平面布置图
▲ 入户望向室内,左侧墙面安装几个衣帽钩,赋有趣味性
▲ 餐厅一张实木餐桌搭配四把温莎椅,隔断墙面开一个百叶窗,增添通透性与小情调
▲ 餐厨区互通设计,空间动线顺畅,采光通透,左侧餐边柜,与墙面木质层板,打造过道端景
▲ 厨房延续公领域个性化瓷砖,墙面铺贴小白砖,两扇大窗户让空间采光充足
▲ 客厅个性化地砖搭配一张大地毯,与跳跃黄的窗帘搭配,空间充满活力
▲ 客厅墙面没有过多的修饰,白色墙面搭配抽象画,一张棕色皮质沙发,质感温润
▲ 客厅一角,休闲自然
▲ 客厅望向餐厨区域
▲ 书房白墙搭配木地板,木质长书桌与背景层架,机能齐全,阳台处增设休闲区,阳光舒适
▲ 儿童房延续木地板与白墙,黑色铁艺床搭配印第安帐篷,蓝色格子窗帘与装饰画让空间更为清新
▲ 主卧整体色调简约,木作储物飘窗搭配拼色窗帘提亮空间,兼具休闲机能
▲ 床背景自然系装饰画,床侧大衣柜解决空间收纳需求
▲ 卫生间整体以黑白为基调,花砖地面与金色墙镜,提升空间格调
设计 | 邦标设计(江苏)
微信:18652888202
后台回复「邦标」可以看更多作品
媒体转载请注明装修33天并保留设计师联系方式
欢迎业主、设计师、装修公司免费投稿照片
装修33天商务合作微信:king194316
松爷店铺掌柜微信:yejia1701
邦标设计其他作品推荐,点击下图查看简约格调三层大宅 挑高客厅大气外露
实用装修指南
装修33天 🏡 实用装修指南
喜欢我们的文章就随手转发到您朋友圈吧